2025.09.01

第2章 住宅部位別プランのポイント ⑪収納室

家族とモノの暮らし方に合わせて、“しまう”場所へ

モノが多様化し、暮らし方が変わる今、収納は単なる「スペースの確保」ではなく、生活動線や使い勝手を踏まえた“空間設計”として考えることが求められています。
収納の場所・広さ・形状によって、住まいの快適性や暮らしやすさは大きく変わります。

1)目的に応じて選べる収納のスタイル

収納と一口にいっても、設置場所や収納するモノによってさまざまな形があります。大きく分けて「個室に設ける収納」と「家族で共有する収納」があります。それぞれの用途と配置を整理してみましょう。

  • ウォークインクローゼット(WIC)

    主寝室や子供室などに隣接して設ける、衣類収納のための空間。0.75坪から6帖程度まで広さはさまざまで、ハンガーパイプや可動棚、姿見などを組み合わせて自分仕様にカスタマイズできます。

  • 収納室(納戸)

    季節家電や大きな荷物、長尺物など、家族共用のストック品を収納するのに便利なスペース。通路を確保しながら“見渡せる収納”にすることで使い勝手も向上します。

  • パントリー(食品庫)

    キッチン周辺に設ける食品や備蓄品の収納スペース。オープン棚や引き出し式の収納、家電置き場などを組み合わせれば、「隠す」「見せる」のメリハリがついたスッキリ空間に。

  • 押入・押入収納ユニット

    和室に欠かせない収納。布団収納を基本に、座布団や季節飾りの保管場所として活躍します。既製ユニットを使えば、衣類収納や小物整理にも対応可能です。

  • 壁面収納・シューズクローゼット・階段下収納

    寝室や子供室の壁面を活かした収納や、玄関まわりの靴・傘・防災用品などの収納も暮らしの快適さに直結します。階段下や廊下の一角など、空間の「余白」を活かす工夫がカギです

2)収納の奥行き・高さ・扉の選び方

収納は「どれだけ入るか」だけでなく、「どれだけ取り出しやすいか」も重要な視点です。

奥行きの目安

衣類収納(ハンガーパイプ使用)には600mm以上、奥行き450mm前後は棚収納に適しています。タンスなど大型家具を置く際は、扉の開閉スペースも考慮が必要です。

扉の種類と動線の工夫

開き戸・折戸・引戸といった扉のタイプは、設置場所や隣接する家具・通路幅などとあわせて検討します。引戸やオープン収納にすることで、動線と連動した使いやすい空間になります。

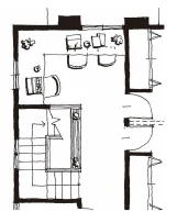
収納室(納戸)にタンスを収納するときの注意点

3)ファミリーライブラリーという発想

収納はただ「しまう」ための場所ではなく、“家族のモノと暮らす”発想でプランニングすることで、暮らしの質が向上します。

書斎というより“家族みんなが使える本棚&デスク空間”として、階段ホールや廊下、リビングの一角を活用。子どもの勉強や趣味のスペース、ワークスペースとしても活躍します。

階段まわりのコーナー

部屋をオープンにして

通路の幅を少し広げて

カテゴリTOPに戻る

Panasonicの住まい・くらし SNSアカウント

  • すむすむ公式 Facebook
  • すむすむ公式 X
  • すむすむ公式 Instagram
  • すむすむ公式 LINE
  • すむすむ公式 Youtube