2025.09.01

第1章 家づくりプランニングのポイント ①敷地条件から考えるプランニング

家のプランは、間取りやデザインだけでなく、敷地の形状や道路との位置関係といった「土地の条件」によって大きく変わります。

理想の暮らしを実現するためには、建物の配置・玄関の向き・採光・プライバシー・駐車スペースなど、さまざまな視点から敷地を読み解くことが大切です。

1)道路との関係からアプローチを考える

敷地と接する道路の向き(南・北・東・西)や接道面の位置は、建物の顔となるアプローチや玄関の位置に直結します。例えば南側道路に面している敷地は日当たりが良く、南庭も確保しやすい一方で、プライバシーへの配慮が必要。玄関が敷地の中央にある「センター入り」か、端にある「端入り」かでも間取りに大きな違いが生まれます。

2)敷地の形状による影響を把握する

同じ面積でも、正方形・長方形・旗竿地など、敷地の形状によって建てられる建物の形や空間の使い方は変わります。例えば旗竿地では駐車スペースや採光に制約が出る場合も。周辺の建物との距離や窓の配置、風通しなどにも影響するため、形状を踏まえた柔軟な設計が求められます。

3)道路の方位と“入勝手”が間取りを決める

敷地と道路との関係は、玄関の位置や建物の向き、室内動線に大きな影響を与える重要な要素です。南・北・東・西、どの方角に道路があるかによって、日当たりやプライバシーの確保、庭や駐車スペースの構成まで変わってきます。ここでは道路の方位と、玄関を敷地の中央に設ける「センター入り」か、端に寄せる「端入り」かによる、プランニング上の特長を紹介します。

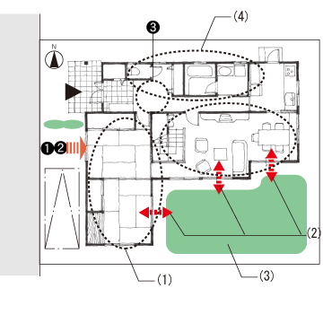
南側道路・南入り(センター入り)

  1. 南側の庭をアプローチが分断する構成になる
  2. 建物の全体が見えるため、外観デザインを活かせる
  3. 南側の居室はホールや廊下を挟んで2分割される
  4. 各居室に独立性を持たせやすい
  5. 水廻りが分断されやすい点に注意

チェックポイント

  1. アプローチ近くの居室は、視線を遮る植栽や塀などの工夫を
  2. 西側の開口部は、西日対策(庇やカーテン)を検討

南側道路・南入り(端入り) ※東西どちらでも同様

  1. 南庭を連続して確保しやすい
  2. 外観全体の見栄えを活かせる
  3. 南側の居室を一列に並べやすい
  4. 水廻りをまとめやすく、家事動線が効率的
  5. 廊下が長くなりがちで、採光・通風対策が必要

チェックポイント

  1. プライベート空間の視線対策(植栽や窓配置)を
  2. 長い廊下は暗くなりやすいため、坪庭・採光窓・ガラス戸などを活用

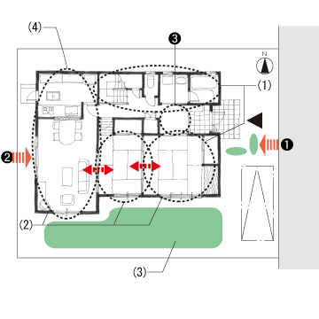
西側道路・西入り(センター入り)

  1. 居室と水廻りを廊下で分離しやすい
  2. 南側居室の連続配置や、東側にLDKをまとめる構成が可能
  3. まとまった庭スペースを確保しやすい

西側道路・西入り(端入り) ※北寄りの場合

  1. 西南の角に独立性の高い居室を配置しやすい
  2. 庭を挟んでリビングと個室をつなげるような、変化のある空間構成が可能
  3. まとまった庭スペースを確保しやすい
  4. 水廻りをまとめやすく、家事動線が効率的

チェックポイント

  1. 道路側の視線、音、設備の設置場所に注意
  2. 西側開口部の西日対策は必須
  3. ホールや廊下の採光計画も重視

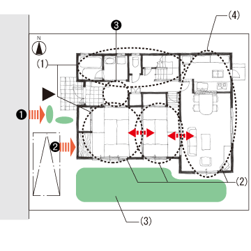
北側道路・北入り(センター入り)

  1. 廊下が短くコンパクトな動線を構成しやすい
  2. 南側に居室をまとめたプランが可能
  3. 勝手口を道路側に配置しやすく、家事動線も良好

北側道路・北入り(端入り)※東西どちらでも同様

  1. 水廻りを1か所にまとめやすく、家事効率も良好
  2. 南側に居室を連続して配置でき、採光も確保しやすい
  3. 玄関側に独立した部屋を設けやすく、使い分けにも便利
  4. 勝手口を道路側に設置しやすく、生活動線がスムーズ

チェックポイント

  1. 道路側に浴室などを配置する場合は、目隠しや植栽などで視線対策を
  2. 西側開口部の西日対策は必須
  3. ホールや廊下の採光計画も重視

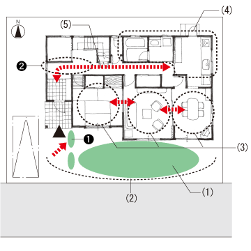
東側道路・東入り(センター入り)

  1. 独立した部屋とリビングを庭でつなげる構成が可能
  2. 西側にLDK、南側に連続した居室を配置しやすい
  3. まとまった庭スペースを確保しやすい

東側道路・東入り(端入り) ※北寄りの場合

  1. 東南の角に独立した居室を確保しやすい
  2. 庭を挟んで、リビングと個室をゆるやかにつなげる間取りが可能
  3. まとまった庭スペースを確保しやすい

チェックポイント

  1. 道路側の視線、音、設備の設置場所に注意
  2. 西側開口部の西日対策は必須
  3. ホールや廊下の採光計画も重視
カテゴリTOPに戻る

Panasonicの住まい・くらし SNSアカウント

  • すむすむ公式 Facebook
  • すむすむ公式 X
  • すむすむ公式 Instagram
  • すむすむ公式 LINE
  • すむすむ公式 Youtube