ページの先頭です。
ここから本文です。
Panasonic リフォーム 京阪(パナソニック リフォーム株式会社)
| 建物種別 | 戸建て |
|---|---|
| 改修規模 | 全面リフォーム |
| 築年数 | 築16年 |
| 施工期間 | 約45日 |
| 地域 | 大阪府 |
| 家族構成 | お父さま・お母さま・ご主人・奥さま・長女・次女 |
| テーマ | バリアフリー、ペット、吹き抜け |
[子世帯]2階
2つの洋室を取り払い、天井を生かした伸びやかな空間へ。木の味わいを生かしたナチュラルなインテリアにビビッドな赤のソファポイントです。
[子世帯]2階
洋室と和室を一体化して子世帯LDに。斜め天井や抜けない柱をアクセントに。
[子世帯]2階キッチン
3連IHを採用したキッチン、抜けなかった柱をアクセントとして使用し、キッチンはサイズを調整して取り付けました。
[子世帯]2階リビング
ウォークインクロゼットの壁部分に壁掛けテレビを設置。配線などが見えないようにスッキリと。
[子世帯]2階リビング
斜め天井とアクセントの柱を生かした空間。間接照明で演出しています。
[親世帯]1階リビング
壁面にシステム収納キュビオスを新設。
海外で購入されたお気に入りの家具や鏡の配置も考慮し、家族が集まるLDKをできるだけ広く確保しました。勾配天井で縦にも空間を広げ、3階子供室にもつながりのある居心地のいいスペースに。LDにいるわんちゃんコーナーもキッチンから見える場所に計画し、家族の気配が常に感じられるゾーニングに。


[子世帯]2階Before

[子世帯]2階
2つの洋室を取り払い、天井を生かした伸びやかな空間へ。木の味わいを生かしたナチュラルなインテリアにビビッドな赤のソファポイントです。

[子世帯]2階
洋室と和室を一体化して子世帯LDに。斜め天井や抜けない柱をアクセントに。

[子世帯]2階キッチン
3連IHを採用したキッチン、抜けなかった柱をアクセントとして使用し、キッチンはサイズを調整して取り付けました。

[子世帯]2階リビング
ウォークインクロゼットの壁部分に壁掛けテレビを設置。配線などが見えないようにスッキリと。

[子世帯]2階リビング
斜め天井とアクセントの柱を生かした空間。間接照明で演出しています。
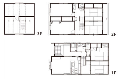
・2階は使っておらず、3階は物置になっていた。
・水まわりなどの設備の老朽化に伴う改修

・1階は親世帯、2,3階を子世帯のスペースに
・玄関とお風呂のみ共用で3世帯が快適に過ごせる住まいに