ページの先頭です。
ここから本文です。
Panasonic リフォーム 京阪(パナソニック リフォーム株式会社)
| 建物種別 | 戸建て |
|---|---|
| 改修規模 | 全面リフォーム |
| 築年数 | 築16年 |
| 総工事面積 | 約176m2 |
| 施工期間 | 約45日 |
| 総工事費 | 約2100万円 |
| 地域 | 大阪府 |
| 家族構成 | お父さま・お母さま・ご主人・奥さま・長女・次女 |
| テーマ | バリアフリー、ペット、吹き抜け |
[子世帯]2階
2つの洋室を取り払い、天井を生かした伸びやかな空間へ。木の味わいを生かしたナチュラルなインテリアにビビッドな赤のソファポイントです。
[子世帯]2階
洋室と和室を一体化して子世帯LDに。斜め天井や抜けない柱をアクセントに。
[子世帯]2階キッチン
3連IHを採用したキッチン、抜けなかった柱をアクセントとして使用し、キッチンはサイズを調整して取り付けました。
[子世帯]2階リビング
ウォークインクロゼットの壁部分に壁掛けテレビを設置。配線などが見えないようにスッキリと。
[子世帯]2階リビング
斜め天井とアクセントの柱を生かした空間。間接照明で演出しています。
[親世帯]1階リビング
壁面にシステム収納キュビオスを新設。
[子世帯]3階Before
[子世帯]海の中のようなマリンブルーのクロスで個性的に。好きなカラーのクロスを用いることで、同じような間取りでも全く異なる空間になりました。
[子世帯]女性が多いことからお化粧なども出来るよう幅が広めの洗面台。「鏡裏にも収納できる三面鏡は便利ですね」と奥さま。階段下のスペースを利用し、ルンバの収納スペースが出来ました。3階への階段は吹抜けで明るく演出しています、
[親世帯]お母さまの好きなピンク色の収納棚を洗濯機置き場上部に取り付け。
おしゃれな鏡が映えるシックなコーディネートのトイレ。単色ではなく、遊び心のあるブラウン系のストライプ柄クロスをチョイス。
パナソニックのショウルームで選ばれた最新型のバスルーム。ゆったり入浴できる広さと、手すりなどの設置で安全にも配慮。
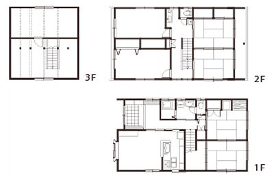
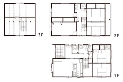
海外勤務されていたご主人様が帰国されるにあたり、木造3階建ての奥様のご実家を二世帯住宅としてリフォーム。
1階は親世帯、2,3階を子世帯のスペースとし、インテリア等好みが違う両世帯の生活空間を分けてリフォームを計画。海外で購入されたお気に入りの家具や鏡の配置も考慮し、家族が集まるLDKをできるだけ広く確保しました。


[子世帯]2階Before

[子世帯]2階
2つの洋室を取り払い、天井を生かした伸びやかな空間へ。木の味わいを生かしたナチュラルなインテリアにビビッドな赤のソファポイントです。

[子世帯]2階
洋室と和室を一体化して子世帯LDに。斜め天井や抜けない柱をアクセントに。

[子世帯]2階キッチン
3連IHを採用したキッチン、抜けなかった柱をアクセントとして使用し、キッチンはサイズを調整して取り付けました。

[子世帯]2階リビング
ウォークインクロゼットの壁部分に壁掛けテレビを設置。配線などが見えないようにスッキリと。

[子世帯]2階リビング
斜め天井とアクセントの柱を生かした空間。間接照明で演出しています。
・2階は使っておらず、3階は物置になっていた。
・水まわりなどの設備の老朽化に伴う改修

・1階は親世帯、2,3階を子世帯のスペースに
・玄関とお風呂のみ共用で3世帯が快適に過ごせる住まいに