愛知県 K様邸
5か所で計2坪の増築で広々空間&たっぷり収納! ~孫たちの集う家へ~
担当: シンセイ建設株式会社(旧:リファインおおぶ) 店舗情報
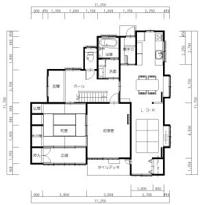
ビフォアアフター
ビフォア:狭く老朽化した浴室
アフター:出窓部分を増築して1坪タイプにサイズアップ。脚を伸ばしてゆったり入浴できます。
ビフォア:ボールが小さく水はねが気になる洗面台
アフター:手洗いの洗濯に欠かせない広い洗面ボウルは奥様のこだわり。
巾900mmの洗面化粧台でつけ置き洗いもラクラク。
ビフォア:使わない和室を有効利用し、明るく広いLDKに変更
アフター:陽当たりはよいが使っていない和室を1坪増築しDKとつなげて明るく広いLDKに。
リフォームデータ
| 築年数 | 築33年 |
|---|---|
| 施工期間 | 約113日 |
| 地域 | 愛知県 |
| 家族構成 | 1世帯2人 |
このリフォームで採用したパナソニック商品
- 洗面ドレッシング ウツクシーズ
- バスルーム リフォムス
リフォームポイント
建物・設備共に少しずつ傷みが出てきたことと、生活スタイルが大きく変わったことで、リフォームをお考えになられました。
使わない和室を有効利用し、孫たちが遊びに来た時に、みんなで楽しく過ごせる広くて明るいLDKをご提案。
暗く狭かった水周り空間を大幅に変更し、使い勝手の良いお住まいにリフォームしました。
お客様の声
今後もっと高齢になっても、ずっときれいに、そして楽に使い続けられるリフォームを提案してくれました。実際に今まで使っていたものと比べると、使いやすさ掃除のしやすさに驚いています。
LDKも広く明るくなり、また、ちょっとしたものをすぐそばに収納できるようになったのでスッキリ片付き、お花などを飾るのもますます楽しくなりました。

