大阪府 Iさま邸
シックでスタイリッシュなトイレ
担当: Panasonic リフォーム 京阪(パナソニック リフォーム株式会社) 店舗情報
ビフォアアフター
ビフォア:
アフター:おしゃれな鏡が映えるシックなコーディネートのトイレ。単色ではなく、遊び心のあるブラウン系のストライプ柄クロスをチョイス。
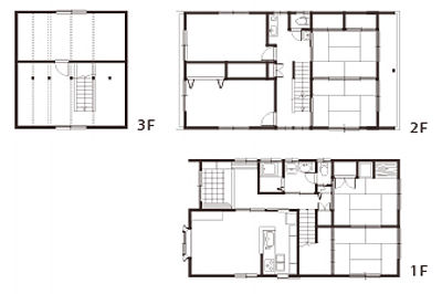
ビフォア:・2階は使っておらず、3階は物置になっていた。
・水まわりなどの設備の老朽化に伴う改修
アフター:・1階は親世帯、2,3階を子世帯のスペースに
・玄関とお風呂のみ共用で3世帯が快適に過ごせる住まいに
リフォームデータ
| 建物種別 | 戸建て |
|---|---|
| 築年数 | 築16年 |
| 施工期間 | 約45日 |
| 地域 | 大阪府 |
| 家族構成 | お父さま・お母さま・ご主人・奥さま・長女・次女 |
| テーマ | バリアフリー、ペット、吹き抜け |
このリフォームで採用したパナソニック商品
現行のおすすめ商品
リフォームポイント
海外勤務されていたご主人様が帰国されるにあたり、木造3階建ての奥様のご実家を二世帯住宅としてリフォーム。
1階は親世帯、2,3階を子世帯のスペースとし、インテリア等好みが違う両世帯の生活空間を分けてリフォームを計画。海外で購入されたお気に入りの家具や鏡の配置も考慮し、家族が集まるLDKをできるだけ広く確保しました。
お客様の声
私たちのこだわりを理解しつつ、予算も踏まえた提案をしていただきました。サンプルだけではイメージしにくい床や柱の色などは、実例を見学させていただけたのがよかったです。入居を急いでいたので工期がタイトでしたが、プランを何度も手直ししてくださり、本当に感謝しています。
担当者の声
海外で過ごされた期間が長く、お手持ちの家具のサイズも大きかった為、家具の配置まで検討しながらプランを検討させていただきました。床や柱の色を提案する際は建築中の他の現場にご案内し、実際の実物をみて決めていただきました。
プランは、LDKをとにかく広く取りたいとのことだったので、勾配屋根を活用し、天井を抜いて広がりを持たせました。ご入居希望日までの期間が短かったこともあり、着工してからも細かな打合せを重ねながら進めました。

