大阪府 Iさま邸
女性がゆったりつかえる洗面台
担当: Panasonic リフォーム 京阪(パナソニック リフォーム株式会社) 店舗情報
ビフォアアフター
ビフォア:
アフター:[子世帯]女性が多いことからお化粧なども出来るよう幅が広めの洗面台。「鏡裏にも収納できる三面鏡は便利ですね」と奥さま。階段下のスペースを利用し、ルンバの収納スペースが出来ました。3階への階段は吹抜けで明るく演出しています、
ビフォア:
アフター:[親世帯]お母さまの好きなピンク色の収納棚を洗濯機置き場上部に取り付け。
ビフォア:・2階は使っておらず、3階は物置になっていた。
・水まわりなどの設備の老朽化に伴う改修
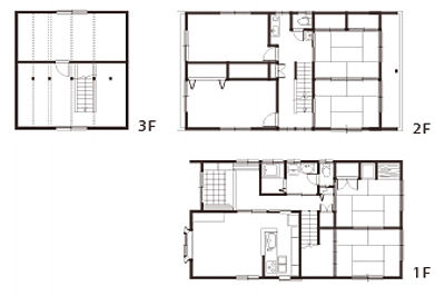
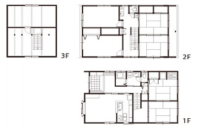
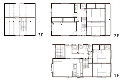
アフター:・1階は親世帯、2,3階を子世帯のスペースに
・玄関とお風呂のみ共用で3世帯が快適に過ごせる住まいに
リフォームデータ
| 建物種別 | 戸建て |
|---|---|
| 築年数 | 築16年 |
| 施工期間 | 約45日 |
| 地域 | 大阪府 |
| 家族構成 | お父さま・お母さま・ご主人・奥さま・長女・次女 |
| テーマ | バリアフリー、ペット、吹き抜け |
このリフォームで採用したパナソニック商品
リフォームポイント
海外勤務されていたご主人様が帰国されるにあたり、木造3階建ての奥様のご実家を二世帯住宅としてリフォーム。
1階は親世帯、2,3階を子世帯のスペースとし、インテリア等好みが違う両世帯の生活空間を分けてリフォームを計画。海外で購入されたお気に入りの家具や鏡の配置も考慮し、家族が集まるLDKをできるだけ広く確保しました。
お客様の声
私たちのこだわりを理解しつつ、予算も踏まえた提案をしていただきました。サンプルだけではイメージしにくい床や柱の色などは、実例を見学させていただけたのがよかったです。入居を急いでいたので工期がタイトでしたが、プランを何度も手直ししてくださり、本当に感謝しています。
担当者の声
海外で過ごされた期間が長く、お手持ちの家具のサイズも大きかった為、家具の配置まで検討しながらプランを検討させていただきました。床や柱の色を提案する際は建築中の他の現場にご案内し、実際の実物をみて決めていただきました。
プランは、LDKをとにかく広く取りたいとのことだったので、勾配屋根を活用し、天井を抜いて広がりを持たせました。ご入居希望日までの期間が短かったこともあり、着工してからも細かな打合せを重ねながら進めました。

