リフォーム事例1000!

MENU

大阪府 S様邸

アンティークなマンションリフォーム

担当: (株)河原工房 店舗情報

他の部位

ビフォアアフター

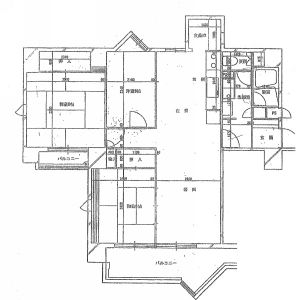
ビフォア:

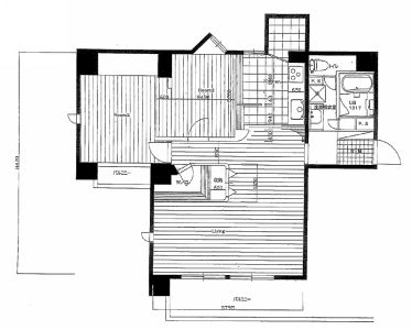
アフター:

ビフォア:

アフター:

リフォームデータ

建物種別マンション
築年数築30年
施工期間約75日
地域大阪府
家族構成ご夫婦
テーマその他

リフォームポイント

マンションの中古物件を購入されたお施主様は、ご結婚をひかえ、新たな共同生活をスタートするにあたり「内装・設備を大好きなインテリア空間にしたい!」というご要望でした。自然素材を用い、お二人にあったアンティーク空間をデザインするとともに、結露・カビなどの対策もしっかりと解決。お家のセンターに配備したWICや内装個所の至る所に造作した『ちょっとした棚』もお手持ちの家具・物・量をお聴き取りご提案。これからのお二方専用の温かいリフォームです。

担当者の声

増原一臣 「マンションリフォームでここまで内装が変わるの!?」と工事中、気になっていた方々が今でも「ちょっと見せてください」と尋ねてこられるそうです。素敵なアンティーク空間を実現するため、エイジングやヴィンテージ塗装(自然塗料)を細部にまで施し、本格アンティークな空間をご提案。床材はマンションのため、遮音性が必要なので、廃盤在庫品のL-45フローリングを床スラブに敷き、その上に無垢フローリングを塗装。無垢材ならではの温かみで足元の体感温度も向上!マンションの、漆喰などに関心のある方々にも大好評で、引っ越したばかりのお施主様も、近所の方々と話す機会が増えて、仲良くなれたと喜んでいらっしゃいました!

施工店情報

  • (株)河原工房
  • 〒569-1142
  • 住所:大阪府高槻市宮田町2-1-29 サンワビル102号
  • 電話:072-668-7170
  • FAX:072-668-7173
  • 建設業 国土交通大臣(般-3)第26187号\n

お店に電話をする