F様邸
大好きな空間を夫婦で楽しむ住まいへ
担当: シンセイ建設株式会社(旧:リファインおおぶ) 店舗情報
ビフォアアフター
ビフォア:
アフター:ダイニングまでが直線になったことで家事動線がよく食事の支度が楽になった。
ビフォア:光があまり入らず、隙間風もあり暗く寒かった。
子供たち家族が揃っての団欒には少し手狭だった。
アフター:リビングと和室は、補助金を利用し断熱性が高く大きな窓に交換。部屋は明るくなり、床暖房をつければ冬はエアコンなしでも十分温かい。各部屋を繋げ段差を解消したことで床掃除も一気にできるので楽になった。
ビフォア:
アフター:ペット連れの帰省にも対応できるよう汚れや傷に強く、お手入れのしやすいフロア材を採用。以前より収納を増やしたが居住空間が今までよりとても広々としており気持ちがいい。
ビフォア:
アフター:キッチン横の構造柱は視界を遮る事のないように意匠性も検討。周りとの調和を図り統一感を持たせた。
ビフォア:
アフター:ご夫婦2人で食事やTV鑑賞を楽しまれる日常は、障子を閉めて省エネに。和室との調和を考え障子のデザインやダイニング照明にもこだわった。
ビフォア:壁で区切られた部屋は狭く、光が届かず薄暗く寒い空間でした。
アフター:間仕切り壁を撤去し広々とした空間と明るさへ。断熱材、複層ガラス、床暖房で高性能で快適な住まいを実現。
リフォームデータ
| 総工事費 | 約1408万円 |
|---|
リフォームポイント
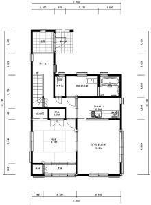
部屋全体を明るくするため、間仕切り壁を撤去しひとつの大空間へ。断熱性が高く大きい窓への交換、床暖房の設置で寒さから解放。キッチンはⅡ型にすることで広い通路幅の確保とパントリーを造作。段差を無くした和室は出入りしやすくダイニングと調和するデザインに。ご夫婦が今後も安心して快適に過ごせる空間を実現。
お客様の声
大好きな空間になった家での生活は本当に気分がよいです。 趣味の旅行やドライブができなくなってふさぎがちだった気分もパッと明るくなれました。
とれない柱は思い通りのプランが叶わず悩みましたが、パントリーや飾り棚にしてもらったことで便利に使っています。
キッチンも家族皆と一緒につかうことができますし、大勢集まっても皆の顔が見渡せます。

