大阪府 Iさま邸
縦のぬけ感と豊かな色彩計画がのびやかな三世代の住まい
担当: Panasonic リフォーム 京阪(パナソニック リフォーム株式会社) 店舗情報
ビフォアアフター
ビフォア:[子世帯]2階Before
アフター:[子世帯]2階
2つの洋室を取り払い、天井を生かした伸びやかな空間へ。木の味わいを生かしたナチュラルなインテリアにビビッドな赤のソファポイントです。
ビフォア:
アフター:[子世帯]2階
洋室と和室を一体化して子世帯LDに。斜め天井や抜けない柱をアクセントに。
ビフォア:
アフター:[子世帯]2階キッチン
3連IHを採用したキッチン、抜けなかった柱をアクセントとして使用し、キッチンはサイズを調整して取り付けました。
ビフォア:
アフター:[子世帯]2階リビング
ウォークインクロゼットの壁部分に壁掛けテレビを設置。配線などが見えないようにスッキリと。
ビフォア:
アフター:[子世帯]2階リビング
斜め天井とアクセントの柱を生かした空間。間接照明で演出しています。
ビフォア:・2階は使っておらず、3階は物置になっていた。
・水まわりなどの設備の老朽化に伴う改修
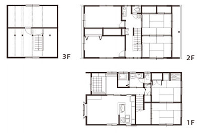
アフター:・1階は親世帯、2,3階を子世帯のスペースに
・玄関とお風呂のみ共用で3世帯が快適に過ごせる住まいに
リフォームデータ
| 建物種別 | 戸建て |
|---|---|
| 築年数 | 築16年 |
| 総工事面積 | 約176m2 |
| 施工期間 | 約45日 |
| 総工事費 | 約2100万円 |
| 地域 | 大阪府 |
| 家族構成 | お父さま・お母さま・ご主人・奥さま・長女・次女 |
| テーマ | バリアフリー、ペット、吹き抜け |
リフォームポイント
海外勤務されていたご主人様が帰国されるにあたり、木造3階建ての奥様のご実家を二世帯住宅としてリフォーム。
1階は親世帯、2,3階を子世帯のスペースとし、インテリア等好みが違う両世帯の生活空間を分けてリフォームを計画。海外で購入されたお気に入りの家具や鏡の配置も考慮し、家族が集まるLDKをできるだけ広く確保しました。
お客様の声
私たちのこだわりを理解しつつ、予算も踏まえた提案をしていただきました。サンプルだけではイメージしにくい床や柱の色などは、実例を見学させていただけたのがよかったです。入居を急いでいたので工期がタイトでしたが、プランを何度も手直ししてくださり、本当に感謝しています。
担当者の声
海外で過ごされた期間が長く、お手持ちの家具のサイズも大きかった為、家具の配置まで検討しながらプランを検討させていただきました。床や柱の色を提案する際は建築中の他の現場にご案内し、実際の実物をみて決めていただきました。
プランは、LDKをとにかく広く取りたいとのことだったので、勾配屋根を活用し、天井を抜いて広がりを持たせました。ご入居希望日までの期間が短かったこともあり、着工してからも細かな打合せを重ねながら進めました。

