北海道 S様
定年後の夫婦の暮らしを見据えて、
IH&エコキュートにリフォーム。
担当: 株式会社テクノブレイン 店舗情報
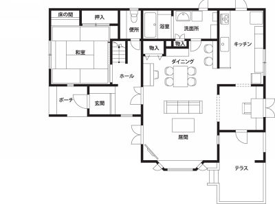
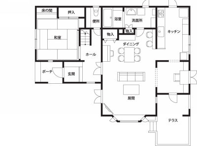
ビフォアアフター
ビフォア:
アフター:
リフォームデータ
| 建物種別 | 戸建て |
|---|---|
| 築年数 | 築19年 |
| 総工事面積 | 約62m2 |
| 施工期間 | 約21日 |
| 総工事費 | 約600万円 |
| 地域 | 北海道 |
| 家族構成 | 一世帯2人 |
| テーマ | 団らんキッチン、オール電化 |
リフォームポイント
お料理上手な奥様は自宅で本格的に「パンづくりができるキッチン」が長年の夢でした。
一方、ご主人は安全性を考えられ、給湯設備を灯油から電気へとリフォームをご希望に。
水廻り全体を最新設備に入れ替えることで空間そのものが生まれ変わりました。
お客様の声
東日本大震災で電気の復旧がいちばん早いことを実感し、IHクッキングヒーターとエコキュートへのリフォームを決意しました。水廻りがとても使いやすくなり、LDKの明るさや広さにも大満足。週に1度のパンづくりや、酸素美泡湯のバスタイムを楽しんでいます。
担当者の声
(株)テクノブレイン 横田 斐紗子 様(左) 漆 佳奈子 様(右) 当社はハーブを使ったエクステリア工事を得意としています。S様もお庭のハーブ園の施工をきっかけにリフォームのお話をいただきました。最新の住宅設備の使いやすさや安心感をとても喜んでくださり、私たちも嬉しく思っています。定年後の暮らしを計画的に考えておられるので、これからもご要望にお応えしていきたいですね。
リフォームを動画で紹介
- 紹介動画
- 担当者の声

