ここから本文です。
R285990000
北海道 S様
定年後の夫婦の暮らしを見据えて、
IH&エコキュートにリフォーム。
株式会社テクノブレイン
| 建物種別 |
戸建て |
| 築年数 |
築19年 |
| 施工期間 |
約21日 |
| 地域 |
北海道 |
| 家族構成 |
一世帯2人 |
| テーマ |
団らんキッチン、オール電化 |
-
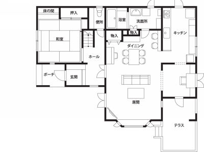
キッチンとダイニングの間の壁を取り払い、対面型のシステムキッチン「リビングステーション」にリフォーム。動線がよくなり、キッチンそのものの面積も拡げたため、明るく動きやすい空間になりました。上品なカラーは奥様のお気に入りです。
-
パンやお菓子を成型するための広い調理台、重量のある粉や調理器具を軽々と仕舞える引き出し収納。高い場所でも取り出しやすい「ソフトダウンウォールユニット」など、使いやすさに奥様も大満足!週に1度はパンを焼いておられます。
-
真冬になると、気温が氷点下15℃まで下がる地域。そのため、エコキュートのタンクは熱損失を防ぐために室内に設置されています。冬でもたっぷりのお湯を使えます。
お料理上手な奥様は自宅で本格的に「パンづくりができるキッチン」が長年の夢でした。
一方、ご主人は安全性を考えられ、給湯設備を灯油から電気へとリフォームをご希望に。
水廻り全体を最新設備に入れ替えることで空間そのものが生まれ変わりました。
東日本大震災で電気の復旧がいちばん早いことを実感し、IHクッキングヒーターとエコキュートへのリフォームを決意しました。水廻りがとても使いやすくなり、LDKの明るさや広さにも大満足。週に1度のパンづくりや、酸素美泡湯のバスタイムを楽しんでいます。
(株)テクノブレイン 横田 斐紗子 様(左) 漆 佳奈子 様(右)
当社はハーブを使ったエクステリア工事を得意としています。S様もお庭のハーブ園の施工をきっかけにリフォームのお話をいただきました。最新の住宅設備の使いやすさや安心感をとても喜んでくださり、私たちも嬉しく思っています。定年後の暮らしを計画的に考えておられるので、これからもご要望にお応えしていきたいですね。
株式会社テクノブレイン
〒002-8042
住所:北海道札幌市北区東茨戸二条1丁目2-36
電話:011-775-7701 FAX:011-775-7702
■建設業 (般-25)石 第18445号