明るく開放的に。子供達を見守れる住まいへ。
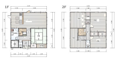
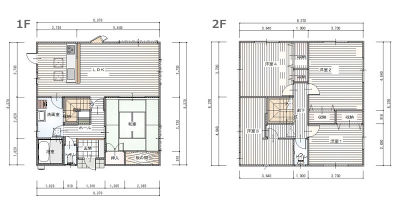
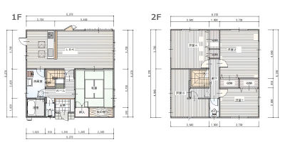
- 物件全体
- キッチン・リビング・和室
- トイレ・洗面
- 玄関・廊下・その他
- 寝室・個室
サンカラーズリフォーム 西神パルティ
| 建物種別 | 戸建て |
|---|---|
| 改修規模 | 全面リフォーム |
| 築年数 | 築34年 |
| 総工事面積 | 約140m2 |
| 施工期間 | 約90日 |
| 総工事費 | 約1600万円 |
| 地域 | 兵庫県 |
| 家族構成 | 夫婦+子供3人 |
| テーマ | 団らんキッチン、広々、その他 |
-
吊戸棚をなくしインテリアカウンターを設置。広々見渡せるキッチンに。横並びで使いやすいトリプルワイドIHを気に入られラクシーナキッチンを採用
-
アウトセットの引戸を取り付けて階段室を外側へ。見た目もスッキリし、階段室と仕切る事で冷暖房の効率もアップ。
-
リビングとの間仕切りはフルオープンできるしっくいホワイトの3枚片引き戸に変更。その他の建具もイデアクークにし、開けっ放しにしていてもリビングとつながりのある和空間に。
-
お手入れ楽ちんのアラウーノを採用。建具と照明も取替え、内装も一新。明るく清潔感あるトイレに仕上がりました
-
W1650のシーライン洗面カウンター。朝の身支度も横並びで準備ができ、広々とお使いいただけます。リビングからのドアも引戸に変更する事で開閉もスムーズに
-
照明は全てダウンライトに変更し、白のクロスを基調に内装材はイデアオークでまとめ、ナチュラルな明るい玄関に
-
玄関正面にあるニッチを閉鎖し、側面にセカンド洗面を設置。外出から戻ってきたらすぐに手洗いができるので感染予防と、洗面渋滞も回避できます
-
他の内装材と同様にイデアオークのリフォーム階段で色を統一。スッキリまとめました
-
建具は取替、床壁天井と内装も一新。収納も部屋の一部として取り込むことで広くすっきりした部屋に
-
2階廊下の照明は全てダウンライトに変更。スッキリ明るくなりました。内装材も全てイデアオークにまとめました。
お子様が3人に増え、お住まいのマンションが手狭になったのを機に中古住宅を購入しての全面リフォーム。白とイデアオークをベースに明るくナチュラルな空間に一新。余分なものは全て取り除き、スッキリさせつつ、ちょっとした変更の積み重ねで快適な使い勝手を実現させました。


4才・2才・0才とまだまだ目が離せない3人のお子様がおられるD様。そんなお子様達を見守りつつ、安心して家事・育児が出来る間取りをご提案。お子様が成長された時の暮らしも考えつつ、ちょっとした提案の積み重ねで少しでも使い勝手よくなるようプランを心がけました。
対面とはいえ、吊戸棚があるとどうしても圧迫感がでてしまうキッチン

吊戸棚をなくしインテリアカウンターを設置。広々見渡せるキッチンに。横並びで使いやすいトリプルワイドIHを気に入られラクシーナキッチンを採用
階段室がリビング側にあった為、冷暖房がどうしても2階に逃げがちに

アウトセットの引戸を取り付けて階段室を外側へ。見た目もスッキリし、階段室と仕切る事で冷暖房の効率もアップ。
和室の建具は全て襖でリビングとの間仕切りも両引き分け戸。しっかりとた和空間。

リビングとの間仕切りはフルオープンできるしっくいホワイトの3枚片引き戸に変更。その他の建具もイデアクークにし、開けっ放しにしていてもリビングとつながりのある和空間に。
設備も古く、全体的に薄暗い雰囲気のトイレ

お手入れ楽ちんのアラウーノを採用。建具と照明も取替え、内装も一新。明るく清潔感あるトイレに仕上がりました
W1650のシーライン洗面カウンター。朝の身支度も横並びで準備ができ、広々とお使いいただけます。リビングからのドアも引戸に変更する事で開閉もスムーズに

W1650のシーライン洗面カウンター。朝の身支度も横並びで準備ができ、広々とお使いいただけます。リビングからのドアも引戸に変更する事で開閉もスムーズに
築34年なので全体的に古さと傷みが所々ではじめている。キッチンの奥行が2730と広すぎるため、壁面収納への動線も長くなり使いにくい。建具もドアが多く、よく出入りする所は引戸に変更。全面リフォームで全てが新しくなるよう、出来るところはコストダウンを図った。

大きく間取りを変えることなく、壁や建具位置の変更移動といった小さな事の積み重ねで、使い勝手を向上させる。1.2階の全面リフォームかつ限られた予算のなかで、出来るだけ全てが新しくなるようコストを抑えるところは抑えつつ、新生活が気持ちよく始められるようご提案。





