兵庫県 D様邸 全面改装工事
ホワイト×イデアオーク シンプルでナチュラルな空間に
- 物件全体
- キッチン・リビング・和室
- トイレ・洗面
- 玄関・廊下・その他
- 寝室・個室
サンカラーズリフォーム 西神パルティ
| 建物種別 | 戸建て |
|---|---|
| 改修規模 | 全面リフォーム |
| 築年数 | 築34年 |
| 工事面積 | 約70m2 |
| 施工期間 | 約90日 |
| 工事費 | 約300万円 |
| 地域 | 兵庫県 |
| 家族構成 | 夫婦+子供3人 |
| テーマ | 団らんキッチン、広々、その他 |
-
建具は取替、床壁天井と内装も一新。収納も部屋の一部として取り込むことで広くすっきりした部屋に
-
2階廊下の照明は全てダウンライトに変更。スッキリ明るくなりました。内装材も全てイデアオークにまとめました。
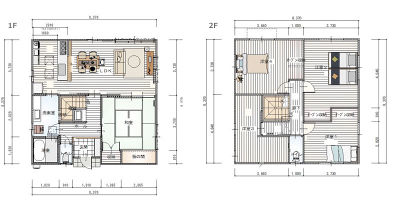
2階は全部屋、巾木以外の内装材は全てイデアオーク。クロスも白を基調としナチュラルな空間に仕上げました。既存の収納は撤去して、全てオープンとし部屋に取り込むことで広々とお使いいただけるのと、コストダウンにもなりました。

対面キッチンで調理や後片付けをしながらリビングで遊んでいる子供達を見守る事が出来るので安心です。子供達ものびのび遊ぶことができ、すべてが新しくなったので気持ちよく生活をスタートさせることができました。

佐藤 笑理
4才・2才・0才とまだまだ目が離せない3人のお子様がおられるD様。そんなお子様達を見守りつつ、安心して家事・育児が出来る間取りをご提案。お子様が成長された時の暮らしも考えつつ、ちょっとした提案の積み重ねで少しでも使い勝手よくなるようプランを心がけました。
4才・2才・0才とまだまだ目が離せない3人のお子様がおられるD様。そんなお子様達を見守りつつ、安心して家事・育児が出来る間取りをご提案。お子様が成長された時の暮らしも考えつつ、ちょっとした提案の積み重ねで少しでも使い勝手よくなるようプランを心がけました。
床と建具の色がバラバラで収納も不要

建具は取替、床壁天井と内装も一新。収納も部屋の一部として取り込むことで広くすっきりした部屋に
照明もシーリングライトなのでスッキリさせたいとご要望。こちらも床・建具・内装材の色がバラバラなのがご不満

2階廊下の照明は全てダウンライトに変更。スッキリ明るくなりました。内装材も全てイデアオークにまとめました。
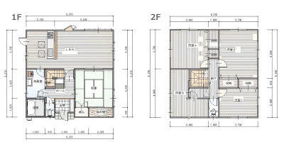
築34年なので全体的に古さと傷みが所々ではじめている。キッチンの奥行が2730と広すぎるため、壁面収納への動線も長くなり使いにくい。建具もドアが多く、よく出入りする所は引戸に変更。全面リフォームで全てが新しくなるよう、出来るところはコストダウンを図った。

大きく間取りを変えることなく、壁や建具位置の変更移動といった小さな事の積み重ねで、使い勝手を向上させる。1.2階の全面リフォームかつ限られた予算のなかで、出来るだけ全てが新しくなるようコストを抑えるところは抑えつつ、新生活が気持ちよく始められるようご提案。
このリフォームで採用したパナソニック商品





