兵庫県 D様邸 全面改装工事
明るく清潔感あふれる水廻り空間へ
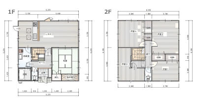
- 物件全体
- キッチン・リビング・和室
- トイレ・洗面
- 玄関・廊下・その他
- 寝室・個室
サンカラーズリフォーム 西神パルティ
| 建物種別 | 戸建て |
|---|---|
| 改修規模 | 全面リフォーム |
| 築年数 | 築34年 |
| 工事面積 | 約7m2 |
| 施工期間 | 約90日 |
| 工事費 | 約150万円 |
| 地域 | 兵庫県 |
| 家族構成 | 夫婦+子供3人 |
| テーマ | 団らんキッチン、広々、その他 |
-
お手入れ楽ちんのアラウーノを採用。建具と照明も取替え、内装も一新。明るく清潔感あるトイレに仕上がりました
-
W1650のシーライン洗面カウンター。朝の身支度も横並びで準備ができ、広々とお使いいただけます。リビングからのドアも引戸に変更する事で開閉もスムーズに
トイレも洗面もどこか薄暗く、設備も古くなっているので使い勝手も含めて一新することに。ご家族も多いので将来を見据えてW1650の洗面カウンターを採用。建具もドアから引戸に変更して開閉の際の安全面も考慮しました。照明もダウンライトに変更し、明るく清潔ある水廻りに。

対面キッチンで調理や後片付けをしながらリビングで遊んでいる子供達を見守る事が出来るので安心です。子供達ものびのび遊ぶことができ、すべてが新しくなったので気持ちよく生活をスタートさせることができました。

佐藤 笑理
4才・2才・0才とまだまだ目が離せない3人のお子様がおられるD様。そんなお子様達を見守りつつ、安心して家事・育児が出来る間取りをご提案。お子様が成長された時の暮らしも考えつつ、ちょっとした提案の積み重ねで少しでも使い勝手よくなるようプランを心がけました。
4才・2才・0才とまだまだ目が離せない3人のお子様がおられるD様。そんなお子様達を見守りつつ、安心して家事・育児が出来る間取りをご提案。お子様が成長された時の暮らしも考えつつ、ちょっとした提案の積み重ねで少しでも使い勝手よくなるようプランを心がけました。
設備も古く、全体的に薄暗い雰囲気のトイレ

お手入れ楽ちんのアラウーノを採用。建具と照明も取替え、内装も一新。明るく清潔感あるトイレに仕上がりました
照明も暗く、洗面化粧台も小さく使い勝手が悪かった洗面室

W1650のシーライン洗面カウンター。朝の身支度も横並びで準備ができ、広々とお使いいただけます。リビングからのドアも引戸に変更する事で開閉もスムーズに
築34年なので全体的に古さと傷みが所々ではじめている。キッチンの奥行が2730と広すぎるため、壁面収納への動線も長くなり使いにくい。建具もドアが多く、よく出入りする所は引戸に変更。全面リフォームで全てが新しくなるよう、出来るところはコストダウンを図った。

大きく間取りを変えることなく、壁や建具位置の変更移動といった小さな事の積み重ねで、使い勝手を向上させる。1.2階の全面リフォームかつ限られた予算のなかで、出来るだけ全てが新しくなるようコストを抑えるところは抑えつつ、新生活が気持ちよく始められるようご提案。
このリフォームで採用したパナソニック商品





