兵庫県 D様邸 全面改装工事

明るく開放的に。子供達を見守れる住まいへ。

サンカラーズリフォーム 西神パルティ
お店の情報・お問い合わせ 
データ
建物種別 戸建て
改修規模 全面リフォーム
築年数 築34年
総工事面積 約140m2
施工期間 約90日
総工事費 約1600万円
地域 兵庫県
家族構成 夫婦+子供3人
テーマ 団らんキッチン、広々、その他
お近くの「パナソニックの住まいパートナーズ」登録店
リフォームポイント

お子様が3人に増え、お住まいのマンションが手狭になったのを機に中古住宅を購入しての全面リフォーム。白とイデアオークをベースに明るくナチュラルな空間に一新。余分なものは全て取り除き、スッキリさせつつ、ちょっとした変更の積み重ねで快適な使い勝手を実現させました。

お客様の声
対面キッチンで調理や後片付けをしながらリビングで遊んでいる子供達を見守る事が出来るので安心です。子供達ものびのび遊ぶことができ、すべてが新しくなったので気持ちよく生活をスタートさせることができました。
担当者の声
佐藤 笑理

4才・2才・0才とまだまだ目が離せない3人のお子様がおられるD様。そんなお子様達を見守りつつ、安心して家事・育児が出来る間取りをご提案。お子様が成長された時の暮らしも考えつつ、ちょっとした提案の積み重ねで少しでも使い勝手よくなるようプランを心がけました。
ビフォーアフター
ビフォー

対面とはいえ、吊戸棚があるとどうしても圧迫感がでてしまうキッチン

アフター

吊戸棚をなくしインテリアカウンターを設置。広々見渡せるキッチンに。横並びで使いやすいトリプルワイドIHを気に入られラクシーナキッチンを採用

ビフォー

階段室がリビング側にあった為、冷暖房がどうしても2階に逃げがちに

アフター

アウトセットの引戸を取り付けて階段室を外側へ。見た目もスッキリし、階段室と仕切る事で冷暖房の効率もアップ。

ビフォー

和室の建具は全て襖でリビングとの間仕切りも両引き分け戸。しっかりとた和空間。

アフター

リビングとの間仕切りはフルオープンできるしっくいホワイトの3枚片引き戸に変更。その他の建具もイデアクークにし、開けっ放しにしていてもリビングとつながりのある和空間に。

ビフォー

設備も古く、全体的に薄暗い雰囲気のトイレ

アフター

お手入れ楽ちんのアラウーノを採用。建具と照明も取替え、内装も一新。明るく清潔感あるトイレに仕上がりました

ビフォー

W1650のシーライン洗面カウンター。朝の身支度も横並びで準備ができ、広々とお使いいただけます。リビングからのドアも引戸に変更する事で開閉もスムーズに

アフター

W1650のシーライン洗面カウンター。朝の身支度も横並びで準備ができ、広々とお使いいただけます。リビングからのドアも引戸に変更する事で開閉もスムーズに

ビフォー

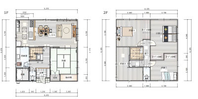
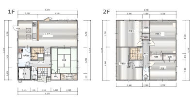
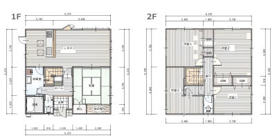
築34年なので全体的に古さと傷みが所々ではじめている。キッチンの奥行が2730と広すぎるため、壁面収納への動線も長くなり使いにくい。建具もドアが多く、よく出入りする所は引戸に変更。全面リフォームで全てが新しくなるよう、出来るところはコストダウンを図った。

アフター

大きく間取りを変えることなく、壁や建具位置の変更移動といった小さな事の積み重ねで、使い勝手を向上させる。1.2階の全面リフォームかつ限られた予算のなかで、出来るだけ全てが新しくなるようコストを抑えるところは抑えつつ、新生活が気持ちよく始められるようご提案。

施工店情報
見なおし隊
サンカラーズリフォーム 西神パルティ

〒651-2277
住所:兵庫県神戸市西区美賀多台9-2-2 パルティ内
電話:0120-454-031 FAX:078-996-1631

■建設業 建設業許可 兵庫県知事許可(般-2)第108842号

お店の情報・お問い合わせ
サンカラーズリフォーム 西神パルティのリフォーム事例一覧
近くのお店を探す

Panasonicの住まい・くらし SNSアカウント