兵庫県 D様邸 全面改装工事
将来の洗面渋滞を見据え 玄関にセカンド洗面を
担当: サンカラーズリフォーム 西神パルティ 店舗情報
ビフォアアフター
ビフォア:玄関収納の色も濃くペンダント照明がぶら下がり、玄関が薄暗い空間に
アフター:照明は全てダウンライトに変更し、白のクロスを基調に内装材はイデアオークでまとめ、ナチュラルな明るい玄関に
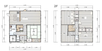
ビフォア:玄関入って正面のニッチスペースが不要との事。かわりに側面に開口を開け、セカンド洗面を設ける事に
アフター:玄関正面にあるニッチを閉鎖し、側面にセカンド洗面を設置。外出から戻ってきたらすぐに手洗いができるので感染予防と、洗面渋滞も回避できます
ビフォア:側板・踏み板・枠材と色がバラバラでまとまりのない階段
アフター:他の内装材と同様にイデアオークのリフォーム階段で色を統一。スッキリまとめました
ビフォア:築34年なので全体的に古さと傷みが所々ではじめている。キッチンの奥行が2730と広すぎるため、壁面収納への動線も長くなり使いにくい。建具もドアが多く、よく出入りする所は引戸に変更。全面リフォームで全てが新しくなるよう、出来るところはコストダウンを図った。
アフター:大きく間取りを変えることなく、壁や建具位置の変更移動といった小さな事の積み重ねで、使い勝手を向上させる。1.2階の全面リフォームかつ限られた予算のなかで、出来るだけ全てが新しくなるようコストを抑えるところは抑えつつ、新生活が気持ちよく始められるようご提案。
リフォームデータ
| 建物種別 | 戸建て |
|---|---|
| 築年数 | 築34年 |
| 工事面積 | 約13m2 |
| 施工期間 | 約90日 |
| 工事費 | 約150万円 |
| 地域 | 兵庫県 |
| 家族構成 | 夫婦+子供3人 |
| テーマ | 団らんキッチン、広々、その他 |
このリフォームで採用したパナソニック商品
リフォームポイント
玄関入ってすぐ正面にあったニッチ収納を閉鎖、かわりに側面に開口を開けてセカンド洗面を設けました。外出から戻ってきてすぐに手洗いができ、将来、お子様の成長と共に洗面渋滞がおきても回避できるよう、ミラーとコンセントも設置しました。
お客様の声
対面キッチンで調理や後片付けをしながらリビングで遊んでいる子供達を見守る事が出来るので安心です。子供達ものびのび遊ぶことができ、すべてが新しくなったので気持ちよく生活をスタートさせることができました。
担当者の声
佐藤 笑理 4才・2才・0才とまだまだ目が離せない3人のお子様がおられるD様。そんなお子様達を見守りつつ、安心して家事・育児が出来る間取りをご提案。お子様が成長された時の暮らしも考えつつ、ちょっとした提案の積み重ねで少しでも使い勝手よくなるようプランを心がけました。


