小さな子供達を見守れる 広々LDK
サンカラーズリフォーム 西神パルティ
| 建物種別 | 戸建て |
|---|---|
| 改修規模 | 全面リフォーム |
| 築年数 | 築34年 |
| 工事面積 | 約49m2 |
| 施工期間 | 約90日 |
| 工事費 | 約600万円 |
| 地域 | 兵庫県 |
| 家族構成 | 夫婦+子供3人 |
| テーマ | 団らんキッチン、広々、その他 |
-
吊戸棚をなくしインテリアカウンターを設置。広々見渡せるキッチンに。横並びで使いやすいトリプルワイドIHを気に入られラクシーナキッチンを採用
-
アウトセットの引戸を取り付けて階段室を外側へ。見た目もスッキリし、階段室と仕切る事で冷暖房の効率もアップ。
-
リビングとの間仕切りはフルオープンできるしっくいホワイトの3枚片引き戸に変更。その他の建具もイデアクークにし、開けっ放しにしていてもリビングとつながりのある和空間に。
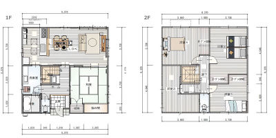
キッチンの吊戸棚は撤去し、オープン対面へ。リビングで遊ぶお子様を見守りながらの家事との両立を実現。リビングへのドア建具位置を移設して、リビング内にあった階段を玄関ホール側へ。階段がリビングの外側となったので冷暖房の効率もアップ。リビング・和室間にフルオープンできる3枚片引き戸を採用。普段は開けっ放し、リビングとつながりある空間へ。


4才・2才・0才とまだまだ目が離せない3人のお子様がおられるD様。そんなお子様達を見守りつつ、安心して家事・育児が出来る間取りをご提案。お子様が成長された時の暮らしも考えつつ、ちょっとした提案の積み重ねで少しでも使い勝手よくなるようプランを心がけました。
対面とはいえ、吊戸棚があるとどうしても圧迫感がでてしまうキッチン

吊戸棚をなくしインテリアカウンターを設置。広々見渡せるキッチンに。横並びで使いやすいトリプルワイドIHを気に入られラクシーナキッチンを採用
階段室がリビング側にあった為、冷暖房がどうしても2階に逃げがちに

アウトセットの引戸を取り付けて階段室を外側へ。見た目もスッキリし、階段室と仕切る事で冷暖房の効率もアップ。
和室の建具は全て襖でリビングとの間仕切りも両引き分け戸。しっかりとた和空間。

リビングとの間仕切りはフルオープンできるしっくいホワイトの3枚片引き戸に変更。その他の建具もイデアクークにし、開けっ放しにしていてもリビングとつながりのある和空間に。
築34年なので全体的に古さと傷みが所々ではじめている。キッチンの奥行が2730と広すぎるため、壁面収納への動線も長くなり使いにくい。建具もドアが多く、よく出入りする所は引戸に変更。全面リフォームで全てが新しくなるよう、出来るところはコストダウンを図った。

大きく間取りを変えることなく、壁や建具位置の変更移動といった小さな事の積み重ねで、使い勝手を向上させる。1.2階の全面リフォームかつ限られた予算のなかで、出来るだけ全てが新しくなるようコストを抑えるところは抑えつつ、新生活が気持ちよく始められるようご提案。





