兵庫県 T様邸

悠・楽・穏・快 ~ワンルーム仕様のおもてなし空間~

サンカラーズリフォーム 西神パルティ
お店の情報・お問い合わせ 
データ
建物種別 マンション
改修規模 改装・設備交換
築年数 築30年
工事面積 約46m2
施工期間 約25日
工事費 約600万円
地域 兵庫県
家族構成 1人
テーマ 団らんキッチン、ホームシアター、明るい部屋、広々
お近くの「パナソニックの住まいパートナーズ」登録店
リフォームポイント

マンションの配管上、対面キッチンにはできませんでしたが、おもてなし好きの奥様のためにアイランドカウンターを設け、ご友人を招いて楽しく集っていただけるプランに。キッチンとカップボードも統一され、収納もスッキリ納まりました。お子様も独立され、帰省時の個室もあるので、LDKと和室の間仕切り壁を取り、広々としたLDKの中にベッドを配置したワンルーム仕様のお部屋をご提案しました。普段はゆったり使用していただき、来客時にはベッド空間を隠せるよう間仕切りとしてロールスクリーンを取り付けました。個室の1室をWICにしてLDKの物をスッキリさせ、寛ぐスペースと収納スペースを分け、ぐるっとどこからでもアクセスできる動線を心がけました。

お客様の声
人を呼んでもてなすのが好きで、大きい壁掛けTVも購入していたので、広々としたLDK空間とホームシアターのような雰囲気ができあがり、とても満足しています!キッチンとカップボードが統一され物がスッキリ収納できるようになったので、片付けしやすくなりました。LDKにベッドスペースのご提案をいただき、普段は広いワンルームの中で日常作業ができ、ゆったりとした時間が過ごせてとても快適です。ベッド側からWICや廊下へ出入りできるようになり、動きがスムーズになりました。主人のお仏壇スペースを考えてくださったのもとても嬉しかったです。将来的にはお友達を招いてカフェバーのようなことができたらと夢を膨らませています。ホテルみたいな洗面室も、とても気に入っています!
担当者の声
小野田 純子

ゆったりと寛げ、また沢山のご友人を招いて楽しんでいただける、広々としたLDKと洗面室が出来上がりました!就寝時だけ個室に籠るより、LDKにベッドスペースを設けたワンルームスタイルの方が、普段居心地の良い時間を過ごしていただけるのではないかと思い、この間取りプランをご提案しました。おもてなし好きな奥様なので、来客時にはベッド側の空間を隠せるよう、間仕切りとしてロールスクリーンもご提案。個室の1室をWICにしてLDKと繋げることで、寛ぐスペースと収納スペースを分け、ぐるっとどこからでもアクセスしやすい動線を心がけました。照明や造作棚・アングルやミラーなど、随所に奥様のセンスが活かされた、とても素敵なLDK・洗面室になりました!
ビフォーアフター
ビフォー

キッチン室は、壁で囲われ孤立し、閉鎖的な空間となっていました。

アフター

間仕切り壁を撤去して、開放的な空間に。キッチン・カップボード・アイランドカウンターを同じ色柄にしてしっかり収納量を確保することで、スッキリ統一感のあるおしゃれなLDKになりました。

ビフォー

リビングのスペースにゆとりがなく、家具やピアノなどが、所狭しと置かれている状態でした。

アフター

和室を取り込みリビングとなった場所からもゆったり感じられるLDKに。来客時にはベッド横のロールスクリーンを下ろして、ベッド側の空間を隠せるようにしました。

ビフォー

お子様が独立された後では、間仕切り壁の多い間取りとなっており、使用されないお部屋が出てきてしまっていました。

アフター

キッチン室や和室の間仕切り壁をとることで、広々としたゆとりあるLDKに。ダイニングテーブルからスッキリ見えるよう、冷蔵庫横やベッド廻りの必要な壁は残しました。

ビフォー

和室はタンスや物置き場の納戸と化しており、8畳のスペースがうまく活かされていない状態でした。

アフター

納戸と化していた和室を取り込み、広々としたLDKへ。ダイニングからでも見応え充分な大画面壁掛けTVが映える空間に。ベッド側には普段使いのクローゼットと、お仏壇スペースを確保。

ビフォー

キッチン室は壁で囲われ独立しており、ダイニング・リビングから見えない分、物で溢れていました。設備も古くなっており、開き扉で物が取り出しにくいキッチンでした。

アフター

壁一面にスッキリ納まったキッチンとカップボード。キッチン前にはインテリアカウンターを付けて、おしゃれな調味料置きに。ご友人を招いて、将来的にはアイランドカウンターでカフェバーのようなことができたら、と奥様。

ビフォー

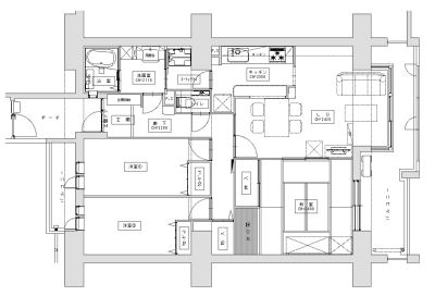
3人のお子様が独立されたのでお部屋の有効活用ができておらず、間仕切りの多い間取りとなっていました。8畳もある和室は納戸と化しほとんど使用されておらず、キッチンは壁に囲われ暗く、お料理中は孤立している状態でした。キッチンや洗面台も古くなっており、物で溢れていました。(浴室・トイレ・個室は、以前施工済み)

アフター

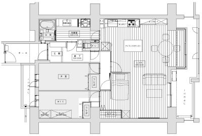
LDK・和室・洗面室・ユーティリティの余分な壁を取り払い、ゆったり広々寛いでいただける空間をご提案しました。和室をLDKに取り込み、リビングの一画にベッドスペースを設け、普段はワンルーム仕様に。ベッド側から個室のWICや廊下に動線を繋げ、ぐるっとどこからでもアクセスできる動線プランを心がけました。

施工店情報
見なおし隊
サンカラーズリフォーム 西神パルティ

〒651-2277
住所:兵庫県神戸市西区美賀多台9-2-2 パルティ内
電話:0120-454-031 FAX:078-996-1631

■建設業 建設業許可 兵庫県知事許可(般-2)第108842号

お店の情報・お問い合わせ
サンカラーズリフォーム 西神パルティのリフォーム事例一覧
近くのお店を探す

Panasonicの住まい・くらし SNSアカウント