悠・楽・穏・快 ~ワンルーム仕様のおもてなし空間~
サンカラーズリフォーム 西神パルティ
| 建物種別 | マンション |
|---|---|
| 改修規模 | 改装・設備交換 |
| 築年数 | 築30年 |
| 工事面積 | 約46m2 |
| 施工期間 | 約25日 |
| 工事費 | 約600万円 |
| 地域 | 兵庫県 |
| 家族構成 | 1人 |
| テーマ | 団らんキッチン、ホームシアター、明るい部屋、広々 |
-
間仕切り壁を撤去して、開放的な空間に。キッチン・カップボード・アイランドカウンターを同じ色柄にしてしっかり収納量を確保することで、スッキリ統一感のあるおしゃれなLDKになりました。
-
和室を取り込みリビングとなった場所からもゆったり感じられるLDKに。来客時にはベッド横のロールスクリーンを下ろして、ベッド側の空間を隠せるようにしました。
-
キッチン室や和室の間仕切り壁をとることで、広々としたゆとりあるLDKに。ダイニングテーブルからスッキリ見えるよう、冷蔵庫横やベッド廻りの必要な壁は残しました。
-
納戸と化していた和室を取り込み、広々としたLDKへ。ダイニングからでも見応え充分な大画面壁掛けTVが映える空間に。ベッド側には普段使いのクローゼットと、お仏壇スペースを確保。
-
壁一面にスッキリ納まったキッチンとカップボード。キッチン前にはインテリアカウンターを付けて、おしゃれな調味料置きに。ご友人を招いて、将来的にはアイランドカウンターでカフェバーのようなことができたら、と奥様。
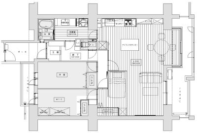
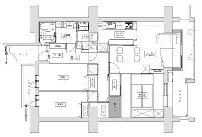
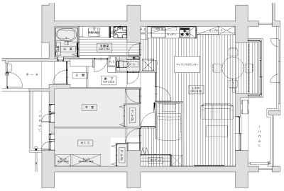
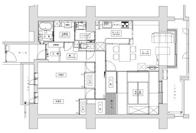
マンションの配管上、対面キッチンにはできませんでしたが、おもてなし好きの奥様のためにアイランドカウンターを設け、ご友人を招いて楽しく集っていただけるプランに。キッチンとカップボードも統一され、収納もスッキリ納まりました。お子様も独立され、帰省時の個室もあるので、LDKと和室の間仕切り壁を取り、広々としたLDKの中にベッドを配置したワンルーム仕様のお部屋をご提案しました。普段はゆったり使用していただき、来客時にはベッド空間を隠せるよう間仕切りとしてロールスクリーンを取り付けました。個室の1室をWICにしてLDKの物をスッキリさせ、寛ぐスペースと収納スペースを分け、ぐるっとどこからでもアクセスできる動線を心がけました。


ゆったりと寛げ、また沢山のご友人を招いて楽しんでいただける、広々としたLDKと洗面室が出来上がりました!就寝時だけ個室に籠るより、LDKにベッドスペースを設けたワンルームスタイルの方が、普段居心地の良い時間を過ごしていただけるのではないかと思い、この間取りプランをご提案しました。おもてなし好きな奥様なので、来客時にはベッド側の空間を隠せるよう、間仕切りとしてロールスクリーンもご提案。個室の1室をWICにしてLDKと繋げることで、寛ぐスペースと収納スペースを分け、ぐるっとどこからでもアクセスしやすい動線を心がけました。照明や造作棚・アングルやミラーなど、随所に奥様のセンスが活かされた、とても素敵なLDK・洗面室になりました!
キッチン室は、壁で囲われ孤立し、閉鎖的な空間となっていました。

間仕切り壁を撤去して、開放的な空間に。キッチン・カップボード・アイランドカウンターを同じ色柄にしてしっかり収納量を確保することで、スッキリ統一感のあるおしゃれなLDKになりました。
リビングのスペースにゆとりがなく、家具やピアノなどが、所狭しと置かれている状態でした。

和室を取り込みリビングとなった場所からもゆったり感じられるLDKに。来客時にはベッド横のロールスクリーンを下ろして、ベッド側の空間を隠せるようにしました。
お子様が独立された後では、間仕切り壁の多い間取りとなっており、使用されないお部屋が出てきてしまっていました。

キッチン室や和室の間仕切り壁をとることで、広々としたゆとりあるLDKに。ダイニングテーブルからスッキリ見えるよう、冷蔵庫横やベッド廻りの必要な壁は残しました。
和室はタンスや物置き場の納戸と化しており、8畳のスペースがうまく活かされていない状態でした。

納戸と化していた和室を取り込み、広々としたLDKへ。ダイニングからでも見応え充分な大画面壁掛けTVが映える空間に。ベッド側には普段使いのクローゼットと、お仏壇スペースを確保。
キッチン室は壁で囲われ独立しており、ダイニング・リビングから見えない分、物で溢れていました。設備も古くなっており、開き扉で物が取り出しにくいキッチンでした。

壁一面にスッキリ納まったキッチンとカップボード。キッチン前にはインテリアカウンターを付けて、おしゃれな調味料置きに。ご友人を招いて、将来的にはアイランドカウンターでカフェバーのようなことができたら、と奥様。
3人のお子様が独立されたのでお部屋の有効活用ができておらず、間仕切りの多い間取りとなっていました。8畳もある和室は納戸と化しほとんど使用されておらず、キッチンは壁に囲われ暗く、お料理中は孤立している状態でした。キッチンや洗面台も古くなっており、物で溢れていました。(浴室・トイレ・個室は、以前施工済み)

LDK・和室・洗面室・ユーティリティの余分な壁を取り払い、ゆったり広々寛いでいただける空間をご提案しました。和室をLDKに取り込み、リビングの一画にベッドスペースを設け、普段はワンルーム仕様に。ベッド側から個室のWICや廊下に動線を繋げ、ぐるっとどこからでもアクセスできる動線プランを心がけました。





