応接室は二階にあるけれどダイニングキッチンが一番長くいる場所なので広く・快適に・豪華な空間にしたい!を形に。
-
キッチンを対面に配した事でダイニングスペースと区切りが出来て家具もレイアウトし易くなった。
-
店舗通路部をダイニングスペースに取り込んで広くなった分大きな分電盤が見えるので収納を作り隠すようにして上手く仕切って掃除機等の収納にした。
-
テレビの位置も以前よりも広くなって良い位置に納まった。
-
クラフトレーベルの扉と床材がお手持ちの家具とも調和してハイクラスなイメージとなった。椅子はお客様によって専門の張替え業者に依頼して新品のようになって戻ってきた。こちらもご主人との思い出が多く大切にというお気持ちだと思う。
既存店舗の通路部分と冷蔵庫部分をダイニングキッチンに取り込んで広くなった分対面キッチンが実現してダイニングスペースとのエリア分けが出来より寛げるスペースとなった。ベリティスフロアーやクラフトレーベルの建具を家具との雰囲気に調和するような色味にした。
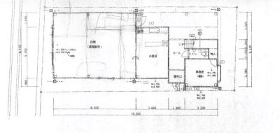
広い店舗を住まいにするという事で最初に5プラン程作り、ゾーニングを中心に絞り込んでいきました。拘りの生活が伺えたので信頼の於けるメーカーの商品を中心にプランニングしました。既存店舗だという事で、土間から束を立て床下地組を作り、既存キッチンと床高を合わせるように施工しました。サッシは準防火地域の為、防火認定仕様にし、防犯の事もあり合わせガラスとしました。採光や通風を考慮してゾーニングをしつつ、他にも使っていない部屋が多くあるのでご家族皆様が快適に住まえるように考えました。
店舗との通路部

キッチンを対面に配した事でダイニングスペースと区切りが出来て家具もレイアウトし易くなった。
家具のレイアウトが定まりにくい

店舗通路部をダイニングスペースに取り込んで広くなった分大きな分電盤が見えるので収納を作り隠すようにして上手く仕切って掃除機等の収納にした。
せっかくの高級家具も冷蔵庫と扉を挟んで横並びになっていた。

テレビの位置も以前よりも広くなって良い位置に納まった。

クラフトレーベルの扉と床材がお手持ちの家具とも調和してハイクラスなイメージとなった。椅子はお客様によって専門の張替え業者に依頼して新品のようになって戻ってきた。こちらもご主人との思い出が多く大切にというお気持ちだと思う。
長年こちらの地域で店舗をされており、ご主人が他界されたこともあり同居となった。一階スペース以外にも二階もゆったりとした空間になっており、今回のゾーニングも既存キッチンダイニングを広げる形になったが娘様世帯のスペースも十分に確保できた。

ご家族のプライベート空間として店舗部分を改装。応接間や個室は他のスペースにあるので今回同居される娘様世帯のファミリー空間の充実がメインのリフォームとなった。また既存キッチンはお母さまと一緒に使い食事も一緒にされるので、ハイグレードで機能的な仕様とした。
- インテリア建材 ベリティス
- 内装ドア ベリティス
- 造作部材 ベリティス
- 床材 ベリティス
- LED照明 シーリングライト






