兵庫県 H様邸
収納量を増やして、お手入れラクに!
- 物件全体
- ダイニング・リビング
- 子供部屋
- キッチン
- 洗面
サンカラーズリフォーム 西神パルティ
| 建物種別 | マンション |
|---|---|
| 改修規模 | 改装・設備交換 |
| 築年数 | 築18年 |
| 工事面積 | 約3m2 |
| 施工期間 | 約20日 |
| 工事費 | 約30万円 |
| 地域 | 兵庫県 |
| テーマ | 明るい部屋、広々、その他 |
-
三面鏡はそのままに、下台をパノラマスライドのウツクシーズに。収納量も増え、物の出入れもしやすく。ボウルも広くなり、壁付水栓でお手入れも楽になりました。
収納量とボウルが広くお手入れラクに、というご希望に合うウツクシーズをご提案。
三面鏡はそのままに、ウツクシーズの下台のみお取替え。収納量も増え、ボウルも大きいのでゆったり使え、お手入れもラクになりました。
広々とした洗面ですが、開き扉なので収納量が少なく、ボウルも小さいので、収納充実のお手入れしやすい洗面をご希望でした。

三面鏡はそのままに、下台をパノラマスライドのウツクシーズに。収納量も増え、物の出入れもしやすく。ボウルも広くなり、壁付水栓でお手入れも楽になりました。
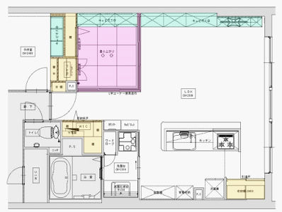
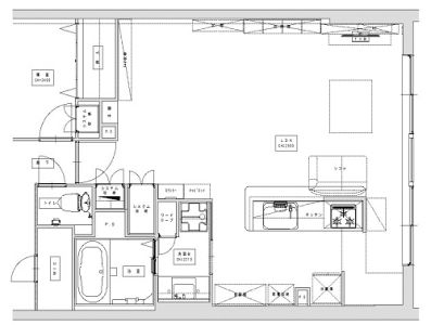
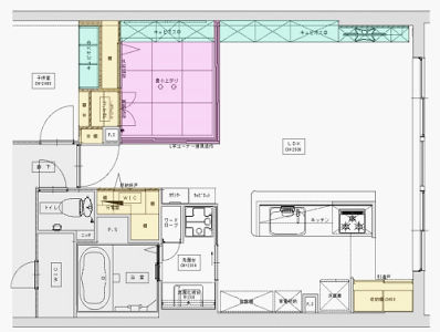
LDKはとても広々としたゆとりある空間でしたが、収納が少なく、家具の統一感も難しい空間になっていました。LDK唯一の収納2つも、奥行が深くて使いづらく、各箇所収納計画が必要な空間となっていました。

個室を子供室にするため、リビングに畳小上がりの和室空間を作って、ご夫妻の寝室に。壁一面のキュビオスで、LDKの収納力も充実しスッキリとした空間に。取合収納・既存のリビング収納・キッチン背面奥も、使い勝手良く改装しました。
このリフォームで採用したパナソニック商品





