兵庫県 H様邸
キッチン背面奥の空間を、スッキリ見栄えの良い収納に!
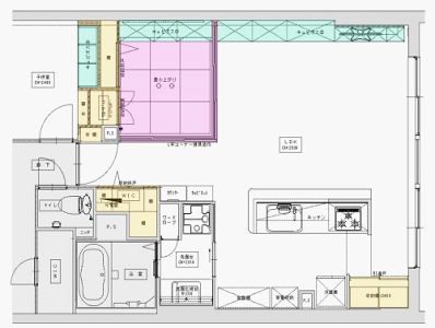
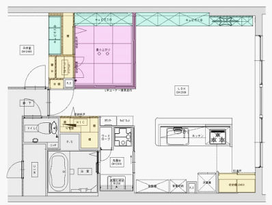
- 物件全体
- ダイニング・リビング
- 子供部屋
- キッチン
- 洗面
サンカラーズリフォーム 西神パルティ
| 建物種別 | マンション |
|---|---|
| 改修規模 | 改装・設備交換 |
| 築年数 | 築18年 |
| 工事面積 | 約1m2 |
| 施工期間 | 約20日 |
| 工事費 | 約25万円 |
| 地域 | 兵庫県 |
| テーマ | 明るい部屋、広々、その他 |
-
壁紙と調和するしっくいホワイト柄の建具で、戸を閉めてしまえば、見た目スッキリ。
-
奥行450の可動棚で、収納物を視認しやすく。戸を開けば何がどこにあるか一目瞭然!
限られたスペースを、可動棚と引違戸で、どこに何があるか分かりやすいスッキリとした収納へ。
キッチンの背面奥のスペース。袖壁があり、限られた空間に合う家具を調達するのは難しく、まとまりのない空間に。

壁紙と調和するしっくいホワイト柄の建具で、戸を閉めてしまえば、見た目スッキリ。
家具の統一が難しく、スペースに納まる家具幅優先の空間でした。

奥行450の可動棚で、収納物を視認しやすく。戸を開けば何がどこにあるか一目瞭然!
LDKはとても広々としたゆとりある空間でしたが、収納が少なく、家具の統一感も難しい空間になっていました。LDK唯一の収納2つも、奥行が深くて使いづらく、各箇所収納計画が必要な空間となっていました。

個室を子供室にするため、リビングに畳小上がりの和室空間を作って、ご夫妻の寝室に。壁一面のキュビオスで、LDKの収納力も充実しスッキリとした空間に。取合収納・既存のリビング収納・キッチン背面奥も、使い勝手良く改装しました。
このリフォームで採用したパナソニック商品





