大阪府 S様邸
アンティークなマンションリフォーム
(株)河原工房
| 建物種別 | マンション |
|---|---|
| 改修規模 | 全面リフォーム |
| 築年数 | 築30年 |
| 施工期間 | 約75日 |
| 地域 | 大阪府 |
| 家族構成 | ご夫婦 |
| テーマ | その他 |
-
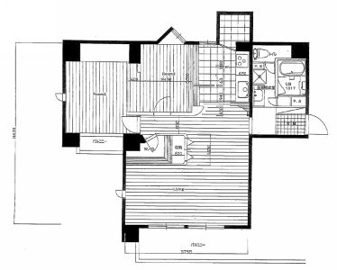
素敵なアンティーク空間を実現するため、エイジングやヴィンテージ塗装(自然塗料)を細部にまで施し、本格アンティークな空間をご提案。床材はマンションのため、遮音性が必要なので、廃盤在庫品のL-45フローリングを床スラブに敷き、その上に無垢フローリングを塗装。無垢材ならではの温かみで足元の体感温度も向上!
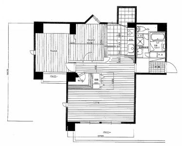
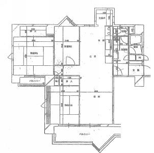
マンションの中古物件を購入されたお施主様は、ご結婚をひかえ、新たな共同生活をスタートするにあたり「内装・設備を大好きなインテリア空間にしたい!」というご要望でした。自然素材を用い、お二人にあったアンティーク空間をデザインするとともに、結露・カビなどの対策もしっかりと解決。お家のセンターに配備したWICや内装個所の至る所に造作した『ちょっとした棚』もお手持ちの家具・物・量をお聴き取りご提案。これからのお二方専用の温かいリフォームです。

増原一臣
「マンションリフォームでここまで内装が変わるの!?」と工事中、気になっていた方々が今でも「ちょっと見せてください」と尋ねてこられるそうです。素敵なアンティーク空間を実現するため、エイジングやヴィンテージ塗装(自然塗料)を細部にまで施し、本格アンティークな空間をご提案。床材はマンションのため、遮音性が必要なので、廃盤在庫品のL-45フローリングを床スラブに敷き、その上に無垢フローリングを塗装。無垢材ならではの温かみで足元の体感温度も向上!マンションの、漆喰などに関心のある方々にも大好評で、引っ越したばかりのお施主様も、近所の方々と話す機会が増えて、仲良くなれたと喜んでいらっしゃいました!
「マンションリフォームでここまで内装が変わるの!?」と工事中、気になっていた方々が今でも「ちょっと見せてください」と尋ねてこられるそうです。素敵なアンティーク空間を実現するため、エイジングやヴィンテージ塗装(自然塗料)を細部にまで施し、本格アンティークな空間をご提案。床材はマンションのため、遮音性が必要なので、廃盤在庫品のL-45フローリングを床スラブに敷き、その上に無垢フローリングを塗装。無垢材ならではの温かみで足元の体感温度も向上!マンションの、漆喰などに関心のある方々にも大好評で、引っ越したばかりのお施主様も、近所の方々と話す機会が増えて、仲良くなれたと喜んでいらっしゃいました!

素敵なアンティーク空間を実現するため、エイジングやヴィンテージ塗装(自然塗料)を細部にまで施し、本格アンティークな空間をご提案。床材はマンションのため、遮音性が必要なので、廃盤在庫品のL-45フローリングを床スラブに敷き、その上に無垢フローリングを塗装。無垢材ならではの温かみで足元の体感温度も向上!









