兵庫県 T様邸
ワイドなカウンター化粧台が引き立つホテルライクな洗面室
担当: サンカラーズリフォーム 西神パルティ 店舗情報
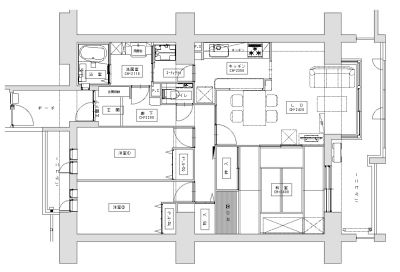
ビフォアアフター
ビフォア:元々広い洗面室でしたが、洗面台も古くなっており、お子様の独立に伴い持て余しがちになっていたトール収納が空間に圧迫感を与えていました。
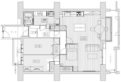
アフター:間口1650の洗面化粧台とサークルミラーが、ホテルライクな雰囲気を演出。引出しキャビネットでしっかり収納を確保したので、トール収納をなくしても、物が溢れずスッキリ納まりました。
ビフォア:洗面室とユーティリティ―は引戸で仕切られていましたが、常に開けっ放しで使用されていませんでした。
アフター:洗濯機上のフレームシェルフと、同じ棚板で作ったアイアンアングル固定棚とブラケット照明が、ホワイトで統一した洗面台や洗濯機の中でアクセントになり、おしゃれな洗面室になりました。
ビフォア:ユーティリティ―は洗濯機置き場のみで収納場所もなく、洗面室とも仕切られていたので、物で溢れていました。
アフター:よく使用するものや仮置き棚として、洗濯機上にフレームシェルフを採用。洗面台や洗濯機の上に物を置いて乱雑になるのを防ぐ効果も。
ビフォア:常時開けっ放しで使用されておらず、意味をなしていなかった洗面室とユーティリティ―の間仕切り壁。
アフター:洗面室からキッチンへ行き来できる元の動線は活かしつつ、洗面室とユーティリティ―の間仕切りを取って、スッキリ広々とした洗面室に。
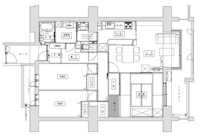
ビフォア:3人のお子様が独立されたのでお部屋の有効活用ができておらず、間仕切りの多い間取りとなっていました。8畳もある和室は納戸と化しほとんど使用されておらず、キッチンは壁に囲われ暗く、お料理中は孤立している状態でした。キッチンや洗面台も古くなっており、物で溢れていました。(浴室・トイレ・個室は、以前施工済み)
アフター:LDK・和室・洗面室・ユーティリティの余分な壁を取り払い、ゆったり広々寛いでいただける空間をご提案しました。和室をLDKに取り込み、リビングの一画にベッドスペースを設け、普段はワンルーム仕様に。ベッド側から個室のWICや廊下に動線を繋げ、ぐるっとどこからでもアクセスできる動線プランを心がけました。
リフォームデータ
| 建物種別 | マンション |
|---|---|
| 築年数 | 築30年 |
| 工事面積 | 約6m2 |
| 施工期間 | 約25日 |
| 工事費 | 約105万円 廊下:クロス・照明の取替え含む |
| 地域 | 兵庫県 |
| 家族構成 | 1人 |
| テーマ | 団らんキッチン、ホームシアター、明るい部屋、広々 |
このリフォームで採用したパナソニック商品
リフォームポイント
ユーティリティは洗濯機置き場のみで、洗面室との間仕切り戸は開けっ放しで利用されていなかったので、間仕切り壁を取り払い広々とした1室にしました。ラシスのフロアキャビネットの収納が充実しているので、トール収納はなくして、W1650のワイドな洗面化粧台に。元々広い洗面室でしたが、間仕切り壁を取り払うことでよりゆとりある空間が確保でき、ワイドな洗面台とサークルミラーがホテルライクな空間を演出し、おしゃれな洗面室に仕上がりました。洗濯機上のフレームシェルフと同じ棚板を使って、洗面横にもアイアンアングル固定棚を取り付け、ブラケット照明と共に、空間の良いアクセントとなりました。
お客様の声
人を呼んでもてなすのが好きで、大きい壁掛けTVも購入していたので、広々としたLDK空間とホームシアターのような雰囲気ができあがり、とても満足しています!キッチンとカップボードが統一され物がスッキリ収納できるようになったので、片付けしやすくなりました。LDKにベッドスペースのご提案をいただき、普段は広いワンルームの中で日常作業ができ、ゆったりとした時間が過ごせてとても快適です。ベッド側からWICや廊下へ出入りできるようになり、動きがスムーズになりました。主人のお仏壇スペースを考えてくださったのもとても嬉しかったです。将来的にはお友達を招いてカフェバーのようなことができたらと夢を膨らませています。ホテルみたいな洗面室も、とても気に入っています!
担当者の声
小野田 純子 ゆったりと寛げ、また沢山のご友人を招いて楽しんでいただける、広々としたLDKと洗面室が出来上がりました!就寝時だけ個室に籠るより、LDKにベッドスペースを設けたワンルームスタイルの方が、普段居心地の良い時間を過ごしていただけるのではないかと思い、この間取りプランをご提案しました。おもてなし好きな奥様なので、来客時にはベッド側の空間を隠せるよう、間仕切りとしてロールスクリーンもご提案。個室の1室をWICにしてLDKと繋げることで、寛ぐスペースと収納スペースを分け、ぐるっとどこからでもアクセスしやすい動線を心がけました。照明や造作棚・アングルやミラーなど、随所に奥様のセンスが活かされた、とても素敵なLDK・洗面室になりました!


