兵庫県 F様邸
家でも好きな時間に楽しめるトレーニングルームができました!窓からのロケーションが最高!
サンカラーズリフォーム ステップガーデン
| 建物種別 | 戸建て |
|---|---|
| 改修規模 | 全面リフォーム |
| 築年数 | 築26年 |
| 工事面積 | 約17m2 |
| 施工期間 | 約105日 |
| 地域 | 兵庫県 |
| 家族構成 | お義母様 奥様 息子様 娘様 |
| テーマ | 団らんキッチン、二世帯、バリアフリー、明るい部屋、ペット、広々、その他 |
-
洋室に変えて壁はクロスで床はフローリングにしたことで使い方も広がった。
-
二方向から光が入りクロス壁で明るくなったのでより快適な部屋になった。
-
ワンちゃんが覗ける開口もついた手摺壁を新設。
-
ワンちゃんが覗ける開口もついた手摺壁を新設。
-
階段は既存のまま壁面や笠木を新設
-
入口ドアもクローゼット扉も新設。
真壁を大壁にして洋室にして、フローリングの床にお客様が防音マットを敷き、トレーニングマシーンを置いてパーソナルトレーニング室を新設。押入れはクローゼットにして建具も入替え、内部も使いやすく棚やハンガーパイプを新設。

最初和室2間を無くすとLDKを気持ちよく使えるのは分かっていたのですが、不安もありどうしようかなと思っていた時に、図面とパースで様変わりした家のイメージを見せて頂き、こういう風に使えたらいいなぁという楽しみな気持ちに変わりどんどん話が進んでいきました。8帖の和室も大工さんの腕で、立派な床の間や仏間を再現して頂け良かったです。義母や息子・娘・私の部屋も快適になり収納も充実しました。広さはあったのですが食後寛ぐのは4.5帖の北側の和室だったのが今は広いリビングに皆集まっています。

米谷久美子
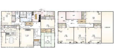
1階の大きな間仕切り移動がポイントで、元の和室2間続きと広縁をLDKにして浴室・洗面を広くとり、ウォークインクローゼットを新設した。勝手口から通じる部分に外で使う用具等を収納できるように物入を作り大容量のクローゼットのある奥様の寝室も新たに作った。真壁の和風建築だったので床天井も解体し、壁も大壁に作り替えた。玄関とホールは既存格天井の趣を残し左官や床材・玄関収納・間接照明で和の雰囲気を残した。2階は和室を洋室に変え内装建具も一新させ各個室を充実させた。
1階の大きな間仕切り移動がポイントで、元の和室2間続きと広縁をLDKにして浴室・洗面を広くとり、ウォークインクローゼットを新設した。勝手口から通じる部分に外で使う用具等を収納できるように物入を作り大容量のクローゼットのある奥様の寝室も新たに作った。真壁の和風建築だったので床天井も解体し、壁も大壁に作り替えた。玄関とホールは既存格天井の趣を残し左官や床材・玄関収納・間接照明で和の雰囲気を残した。2階は和室を洋室に変え内装建具も一新させ各個室を充実させた。
二階洋室 和室を息子さんの部屋として使用。

洋室に変えて壁はクロスで床はフローリングにしたことで使い方も広がった。

二方向から光が入りクロス壁で明るくなったのでより快適な部屋になった。
2階廊下の階段手摺壁がぐらついていた。

ワンちゃんが覗ける開口もついた手摺壁を新設。
2階廊下の階段手摺壁がぐらついていた。

ワンちゃんが覗ける開口もついた手摺壁を新設。
元の階段

階段は既存のまま壁面や笠木を新設
LDKが一番快適な場所にでき、各人の部屋が充実し、水回りが機能的で美しくなってとても快適です。1階のウォークインクローゼットや勝手口から入る外部専用の物入等も便利です。

2間続きの本格的和室と広縁を家族の集う広いLDKにして食事を作る・食べる・TVを見る・寛ぐ・洗濯物を干す ワンちゃんと遊ぶ・お客様を招く等家族みんなで最高の場所を最幸に使って頂けるようにしました。仏間や床の間・違い棚といった本格的な設えは8帖の和室に新設して風情を残しました。
このリフォームで採用したパナソニック商品





