3方向から入る光で明るく、ロケーションも良いので食事時間も最幸になりました!愛犬の居場所もみんなと一緒です!
サンカラーズリフォーム ステップガーデン
| 建物種別 | 戸建て |
|---|---|
| 改修規模 | 全面リフォーム |
| 築年数 | 築26年 |
| 工事面積 | 約21m2 |
| 施工期間 | 約105日 |
| 地域 | 兵庫県 |
| 家族構成 | お義母様 奥様 息子様 娘様 |
| テーマ | 団らんキッチン、二世帯、バリアフリー、明るい部屋、ペット、広々、その他 |
-
元の和室二間続きの部分をダイニングとリビングに分けて開閉でき、フレキシブルに楽しめるようにした。建具は大スパンの為特注。
-
奥のスライド扉の向こうは洗濯干しスペース。広縁を取り込んでゆったりとしたダイニングスペースになった。
-
日当たりの良い広縁は洗濯干しのスタンドを置いて高齢のお母さまが干しやすく工夫。
-
居心地の良いダイニングにワンチャンのスペース作った。
ご高齢のお母様も一緒にお食事をしたり、洗濯物を干したり、ワンちゃんのお世話をしたりと皆が楽に動けるようなスペースであるようにプランニングした。


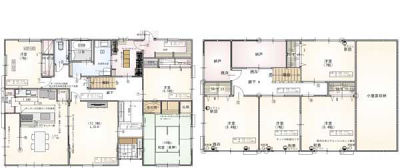
1階の大きな間仕切り移動がポイントで、元の和室2間続きと広縁をLDKにして浴室・洗面を広くとり、ウォークインクローゼットを新設した。勝手口から通じる部分に外で使う用具等を収納できるように物入を作り大容量のクローゼットのある奥様の寝室も新たに作った。真壁の和風建築だったので床天井も解体し、壁も大壁に作り替えた。玄関とホールは既存格天井の趣を残し左官や床材・玄関収納・間接照明で和の雰囲気を残した。2階は和室を洋室に変え内装建具も一新させ各個室を充実させた。
右の仏間はパントリー 違い棚の部分は冷蔵庫と精米機、床の間はカップボードが設置された。

元の和室二間続きの部分をダイニングとリビングに分けて開閉でき、フレキシブルに楽しめるようにした。建具は大スパンの為特注。
縁側部分を取り込んで広いダイニングを作った。

奥のスライド扉の向こうは洗濯干しスペース。広縁を取り込んでゆったりとしたダイニングスペースになった。
元の縁側

日当たりの良い広縁は洗濯干しのスタンドを置いて高齢のお母さまが干しやすく工夫。
広縁

居心地の良いダイニングにワンチャンのスペース作った。
LDKが一番快適な場所にでき、各人の部屋が充実し、水回りが機能的で美しくなってとても快適です。1階のウォークインクローゼットや勝手口から入る外部専用の物入等も便利です。

2間続きの本格的和室と広縁を家族の集う広いLDKにして食事を作る・食べる・TVを見る・寛ぐ・洗濯物を干す ワンちゃんと遊ぶ・お客様を招く等家族みんなで最高の場所を最幸に使って頂けるようにしました。仏間や床の間・違い棚といった本格的な設えは8帖の和室に新設して風情を残しました。
- インテリアカウンター
- ベリティス
- ベリティスフロア
- LED照明 ダウンライト
- ダクトレール





