広島県 O様邸
オフローラ快適
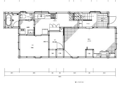
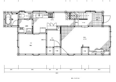
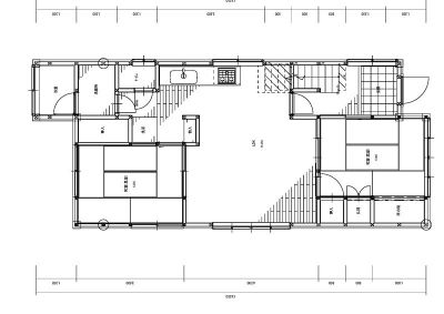
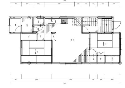
- 物件全体
- ダイニング・リビング
- 浴室
- 洗面
(有)山尾工務店
| 建物種別 | 戸建て |
|---|---|
| 改修規模 | 改装・設備交換 |
| 築年数 | 築45年 |
| 施工期間 | 約90日 |
| 地域 | 広島県 |
| 家族構成 | ご夫婦 |
| テーマ | バリアフリー、明るい部屋、広々 |
水栓部分は水アカが付きにくく、大きめのハンドルで握りやすいです。床も水切れがよく、汚れが落としやすいです。

お部屋がとても明るくなりました。扉も静かに閉まり、室内物干しは、使いやすい高さまで竿を下せるので楽に干せます。操作も楽にできます。お風呂は床が冷たくなく、浴槽も大きくてよかったです。洗面もカラーがいいです。細かい所まで聞いてくださり、ありがとうございました。

山尾 伸幸
埋込型ダウンライトで開放感のある明るい空間となりました。扉も引き込まれるように静かに閉まります。室内物干しは、お客様の干しやすい高さへ自由自在です。お客様に喜んでいただけて大変嬉しいです。
埋込型ダウンライトで開放感のある明るい空間となりました。扉も引き込まれるように静かに閉まります。室内物干しは、お客様の干しやすい高さへ自由自在です。お客様に喜んでいただけて大変嬉しいです。
浴槽がせまく、床がつめたく、寒いお風呂でした。

オフローラにして、寒くなく快適に。
光があまり入らず、暗い。

明るくなり、開放的に。
このリフォームで採用したパナソニック商品





