兵庫県 F様邸
子どもの笑顔が家族みんなの笑顔になれる子育て世代のリノベーション
- 物件全体
- キッチン・ダイニング・リビング
- 子供部屋・その他
- 洗面
株式会社ライフライン
| 建物種別 | 戸建て |
|---|---|
| 改修規模 | 全面リフォーム |
| 築年数 | 築25年 |
| 総工事面積 | 約120m2 |
| 施工期間 | 約60日 |
| 総工事費 | 約1360万円 |
| 地域 | 兵庫県 |
| 家族構成 | 夫婦 子供3人 |
| テーマ | 団らんキッチン、明るい部屋、広々 |
-
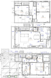
子供部屋がある3階廊下に洗面を設置。
2階部分にLDKとトイレ、洋室1部屋があり、少し窮屈なキッチンでしたが、洋室とLDKの壁を取り払うことで明るく広々したリビングとキッチンを実現。3人のお子様と一緒に調理もしやすいⅡ型のキッチンを採用し、家族が集えるLDKをプラン。3階の浴室を1階へ移動させることで、ご希望の子供部屋を3階に3部屋確保、廊下に洗面台を設置することで子供達の朝の身支度での混雑も解消。

3階建ての戸建、1階を事務所として使用し、結婚時にキッチンを入れ替えただけで住んでいましたが、3人の子供に恵まれ家族が増えるとLDKも少々手狭になってきました。1階の事務所を住居に、また、子供の成長と共に、1人1人に個室を検討。日当たりが悪く暗いのも悩みでしたので、思い切って全面リフォームをすることに。広くて明るいLDKが実現、個々の子供部屋も作って頂き大満足です。

須藤
もともと3階にあった浴室を1階に移動することで3階に子供部屋3室を確保し、2階の洋室とLDKの壁を取り払いトイレを移動させることで家族5人が集える広く明るいLDKをプランしました。
もともと3階にあった浴室を1階に移動することで3階に子供部屋3室を確保し、2階の洋室とLDKの壁を取り払いトイレを移動させることで家族5人が集える広く明るいLDKをプランしました。
キッチンが奥に追いやられ暗く使いづらい。リビングも家族5人が集まるには少し手狭に。






このリフォームで採用したパナソニック商品





