夢を叶え、人生に寄り添うお家
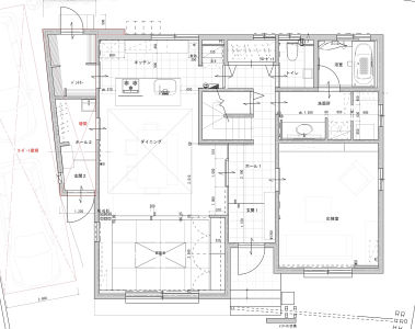
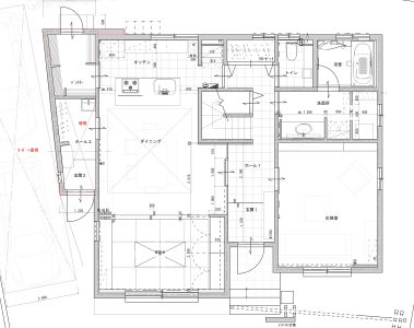
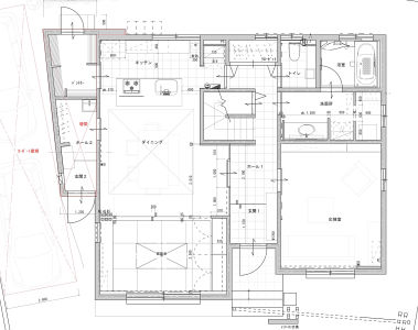
- 物件全体
- ダイニング・リビング
- 玄関・廊下
- 個室
- 洗面
株式会社アラカーサ
| 建物種別 | 戸建て |
|---|---|
| 改修規模 | 増改築 |
| 築年数 | 築28年 |
| 総工事面積 | 約95m2 |
| 施工期間 | 約90日 |
| 総工事費 | 約2500万円 |
| 地域 | 兵庫県 |
| 家族構成 | 二人 |
| テーマ | 団らんキッチン、広々 |
-
玄関や畳コーナーから続く板張りの天井が開放的な大空間。玄関ホールの間仕切りをガラスにしたことで、空間の一体感と冷暖房効率が同時に得られました
-
堀座卓のブラックアッシュがアースカラーでコーディネートした優しい空間の中でよく映え、心地いいアクセントになっています
-
堀座卓の黒に合わせて収納下の壁面に素材感のあるスクラッチ石材を採用。間接照明の光が美しい陰影を生み出しています
-
小上がりの畳コーナーが今回のリフォームのメインで、この堀座卓がその主役。モダンシリーズのすっきりとしたフォルムがシェードカーテンと優しく調和。テーブルランナーはカーテンと同じ素材で作っています
-
キッチンからダイニング、畳コーナーまでオープンに繋がるワンフロアに一新。ゆったりと寛いでいただける空間になりました
-
LDKと天井材を統一し、間仕切りをガラスにすることで一体感を演出しました。土間とホールの床、壁の一部を同じタイルで仕上げたのも空間に広がりを創出するためです
-
高さがばらばらだった建具をベリティスのアウトセット引き戸で統一したことで、空間全体がすっきりとした印象に。タイルとの相性も良く、重厚感や高級感が一層増しました
-
将来はベッドルームとしてお使いいただける応接室。押入れ&床の間をタイルで仕上げ、間接照明で雰囲気のある空間に。開口高を上げてベリティスのアウトセット引き戸がすっきり納まるよう工夫しました
-
障子が付いていた窓は、シェードカーテンやバーチカルブラインドが設置できる仕様に変更
-
納戸があった場所に洗面スペースを移動し、脱衣スペースの奥にガス乾燥機が置けるランドリーコーナーを新設。棚板は湿気に強いベリティスのインテリアカウンターを採用しました
-
ベリティスの引き戸がすっきり納まるよう壁に凹凸を付けて洗面カウンターを設置。美しい見た目を追求しました
住まいに対する不満を丁寧に拾い上げながら、将来への希望もプランの中に。築26年の木造2階建て住宅をご夫婦のライフスタイルに合わせて大胆にリフォームさせていただきました。玄関ホールからLDKまでを大きなワンフロアと捉え、ベリティスのアウトセット引き戸やガラスの間仕切りを活用して開放感を演出。光や風を空間全体で共有できるようにしたことで、暗かったキッチンや玄関が見違えるように明るくなりました。
LDK内に新設した小上がりの畳コーナーはご主人様たってのご希望で実現。今回のリフォームのメインであり、中央に配置した堀座卓がその主役。素材や色調、細部の納まりにまでこだわったとても居心地のいい空間で、ご夫婦の憩いの場となっています。
動線や収納も再構築。増築したガレージから直接出入りできるサブ玄関の北側スペースを利用し、パントリーも設置しています。使用頻度が少なかった納戸は洗面スペースに変更。その分、バスルームやトイレにもゆとりが生まれ、ガス乾燥機が置けるランドリーコーナーまで新設することができました。同じくほとんど使っていなかった和室は応接室に。将来はベッドルームとしても使えるよう壁面や窓周り、照明に工夫を施しました。シンプルながらも重厚感のあるデザインも魅力のひとつで、玄関からLDK、畳スペースまで、天井材を統一するなど、空間の一体感にもこだわっています。他にも、ベリティスのアウトセット引き戸を使ってバリアフリーを導入したり、本がお好きなご主人様がストレスなく読書できるよう照度や色温度が調整できる照明計画と、細部にまで配慮しています。これまでずっと溜め込んでこられた不満をリフォームの力で解消。これからの暮らしを思う存分楽しんでいただける「新しい棲家」が誕生しました。

築26年、汚い、捨てられない、片付かないストレス、気軽に人を呼べない苛立ち、くつろぎのない空間、疲れのとれない日々、遂に別れを告げる決心をした!この決断ができるもう最後の年齢だと思ったからだ。癌も克服できたんだからやれると。そして、見事に生まれ変わった我が家!こんな日を迎えることができるなんて夢にも思ってなかった。玄関を入ると皆が、えー!これ住まい?わぁ!ホテルみたいなおトイレ!洗面所!と感動の嵐。元の面影は無し。アラカーサ様のセンスにお任せし、温かい素晴らしい職人さん達にも恵まれた。ただいま!おかえりなさい!まだ続いてほしかったくらいの楽しい工事期間も問題なくあっという間に過ぎ、遂に完成した!
毎日疲れて帰宅する夫は、車庫から増築した自動で鍵の開く裏口玄関の扉を開け、まずは、あー、いいなぁと入ってくる。食事を終えるやいなやすぐに畳コーナーに移動する。なんとそこには念願の掘り座卓ができたのだ。テレビを見ながら掘り座卓でくつろぐのが夢だった夫は、快適だなぁ、最高だなぁと何回言っただろう!コロナ禍の中、旅行にもいけない日々も旅館のごとく変貌を遂げた我が家で非日常を味わっている。何不自由なく至れり尽くせりの設計に大満足の毎日を過ごしている。あと何年生きられるかわからないけど、死ぬまでこの生まれ変わった我が家で過ごせたらと願っている。新しく和室から生まれ変わった応接室は、将来的には介護ベッドを入れ、介護部屋になる予定だ。そんな準備もでき、心のゆとりも生まれた。ほんとにやってよかったリノベーション!出会えてよかったアラカーサ様!と感謝の日々を過ごしている。

大きな垂れ壁に立ち上がりをしっかりと確保したカウンター、少し閉塞感を感じます

玄関や畳コーナーから続く板張りの天井が開放的な大空間。玄関ホールの間仕切りをガラスにしたことで、空間の一体感と冷暖房効率が同時に得られました

堀座卓のブラックアッシュがアースカラーでコーディネートした優しい空間の中でよく映え、心地いいアクセントになっています

堀座卓の黒に合わせて収納下の壁面に素材感のあるスクラッチ石材を採用。間接照明の光が美しい陰影を生み出しています

小上がりの畳コーナーが今回のリフォームのメインで、この堀座卓がその主役。モダンシリーズのすっきりとしたフォルムがシェードカーテンと優しく調和。テーブルランナーはカーテンと同じ素材で作っています
以前のキッチンは暗く、孤立したイメージ

キッチンからダイニング、畳コーナーまでオープンに繋がるワンフロアに一新。ゆったりと寛いでいただける空間になりました
一般的な間取りではありますが、孤立した暗いキッチンや洗面化粧台の正面に窓がある洗面スペース、タンスを置くと使い辛かった細長い納戸など、気になる点はちらほらとありました。

玄関とLDKを緩やかに繋いで開放的な大空間とし、ぐるりと回遊できる動線を計画しました。サブ玄関を増築し、スペースの半分をパントリーとして活用。水回りは納戸をなくして再構築し、ゆとりのある空間に一新しました。使っていなかった和室は応接室に。将来はベッドルームとして使っていただける空間になっています。





