兵庫県 K様邸

フラット対面で開放的なオープンキッチンに!~バルコニーまで見渡せる快適空間!

株式会社シンエイ・シンエイリフォーム
お店の情報・お問い合わせ 
データ
建物種別 マンション
改修規模 全面リフォーム
築年数 築10年
工事面積 約18m2
施工期間 約75日
工事費 約270万円
地域 兵庫県
家族構成 ご夫婦2人
テーマ 団らんキッチン、バリアフリー、明るい部屋、広々、その他
お近くの「パナソニックの住まいパートナーズ」登録店
リフォームポイント

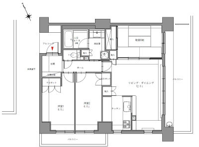
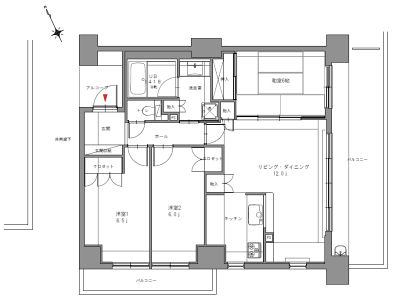
閉鎖的だったキッチンの垂れ壁・腰壁を撤去し、リビング・ダイニングとの天井の段差を活かして間接照明を計画。天井部分にはキッチンのネイビーと相性の良い茶色の木目柄壁紙を合わせてスタイリッシュな空間になりました。

お客様の声
年齢を重ねても気持ちは若くいたいという想いがあり、そのためにはいきいきと楽しく暮らすことが必要と感じていた。生活感を感じさせないホテルライフのような空間づくりが、毎日楽しく暮らせる秘訣ではないかという思いがあった。その思いを叶えてもらえて、快適度120%。コロナ禍で半リタイヤ生活を迎え、逆にそれが追い風となって「おうち愛」が増し、更に家にいる時間を大切にしようという思いが強くなった。思った通り、若々しく毎日快適に過ごしている。
担当者の声
林  清華

終の棲家は年齢を重ねているからこそ毎日が楽しくなる空間にしたいとかねてから考えておられたK様。遠くに住んでおられる娘様ご夫婦の新居を参考に、ありきたりではなくこだわりのリフォームを目指されました。奥様のご要望でフロア材をスタイリッシュなグレーの石目調で全室統一され、ネイビー・グレー・ダークブラウンの3色を基調として次々に思い切ったデザインを選択されました。照明プランもこだわり、ホテルライクな居心地の良い空間が完成しました。
ビフォーアフター
ビフォー

空間の隔たりを感じさせる対面キッチン。友人がよく集まるが、キッチンとの一体感がなく、おもてなしの用意をしていると一人だけ疎外感を感じていた。

アフター

フラット対面キッチンからご主人と料理の受渡しや洗い物の受け取りもラクラク。おかげで家事に専念できる。友人が集まった時は皆が料理に加わり、疎外感がなくなった。

ビフォー

光が届かない閉鎖的なキッチン。

アフター

キッチンの手元照明は集光タイプのスポットライトを採用し、ひと目惚れのインダストリアルなペンダントをプラス。照明は実用的なだけでなくおしゃれな空間づくりにもかかせません。

ビフォー

限られたキッチンスペースは狭くて一人立てばいっぱいに。

アフター

「やってよかった☆」奥様のキッチンお勧め(その1)・・・トリプルワイドガスコンロ→よく遊びに来てくれる近くに住むお嫁さんと2人でキッチンに並んでも、効率的で料理がはかどり楽しい料理タイムとなっている。

ビフォー

マンションのためPS(パイプスペース)位置に縛られてキッチンの位置は大きく替えられない。

アフター

ペニンシュラ型のサイズ合せによってできた幅21㎝のスキマ収納は、天井の木目柄と合わせたインテリアカウンターの採用でおしゃれ感を崩さずに調味料やストック類などを収納できるようになった。

ビフォー

アフター

「やってよかった☆」奥様のキッチンお勧め(その2)・・・自動水栓→手が汚れていても水栓が汚れない。なんといっても炊事が効率的になった!

ビフォー

●対面キッチンは吊戸があるため光が入りにくく閉鎖的で暗かった。●お手持ちのダイニングテーブルやソファを配置するにはリビングが狭い●広いバルコニーはゆったりしているが、殺風景。

アフター

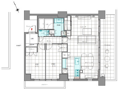
●吊戸を撤去しフラット対面ペニンシュラ型キッチンにすることでLDとの一体感を持たせた。更に和室を取り込んで広々LDKに。●バルコニーにはエクステリアタイルを敷き詰めてLDKと一体的なアウトドアリビングに。

このリフォームで採用したパナソニック商品
施工店情報
見なおし隊
株式会社シンエイ・シンエイリフォーム

〒663-8122
住所:兵庫県西宮市小曽根町4-5-16
電話:0120-47-1662 FAX:0798-48-0354

■建設業 建設業許可 兵庫県知事登録(般-4)第220250号

お店の情報・お問い合わせ
株式会社シンエイ・シンエイリフォームのリフォーム事例一覧
近くのお店を探す

Panasonicの住まい・くらし SNSアカウント