兵庫県 K様邸
普段は寝室としてまた、三枚引戸を開けるとリビング(ファミリールーム)に繋がりフレキシブルに使える空間!
-
リビングからは3枚引戸で間仕切ることが出来開放すると床段差無く広い空間になる。こちらは寝室となる。
-
クローゼット扉内部は一間半の押入れ大の収納となっており布団の他大きな物の収納が出来る。
-
リビングとの仕切りとなる3枚引戸。
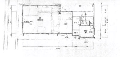
1.25間の広さの収納スペースを設置し布団や大型のものを納めるのに便利なようにした。8畳大の和室とし普段はまだ小さいお子様と一緒にお休みになる寝室としても使えるようにとのご希望に沿ってゾーニングした。元の店舗部分を床下地組から行い既存キッチンダイニングの床の高さとバリアフリーになるようにした。
住み慣れ場所であり、思い出のある家を子世帯が住み続けてくれるのは有り難い事であり、店舗から住宅に変えるのに違和感が無いような外観デザインになって、イメージが一新され嬉しかった。設備をすべてパナソニック商品にしたのは最初の提案に入っていた事もありましたが、ショウルームで見て掃除し易く、美しいデザインと機能的なところが気に入りました。出来上りもグレードアップされ満足しています。
米谷久美子
広い店舗を住まいにするという事で最初に5プラン程作り、ゾーニングを中心に絞り込んでいきました。拘りの生活が伺えたので信頼の於けるメーカーの商品を中心にプランニングしました。既存店舗だという事で、土間から束を立て床下地組を作り、既存キッチンと床高を合わせるように施工しました。サッシは準防火地域の為、防火認定仕様にし、防犯の事もあり合わせガラスとしました。採光や通風を考慮してゾーニングをしつつ、他にも使っていない部屋が多くあるのでご家族皆様が快適に住まえるように考えました。
広い店舗を住まいにするという事で最初に5プラン程作り、ゾーニングを中心に絞り込んでいきました。拘りの生活が伺えたので信頼の於けるメーカーの商品を中心にプランニングしました。既存店舗だという事で、土間から束を立て床下地組を作り、既存キッチンと床高を合わせるように施工しました。サッシは準防火地域の為、防火認定仕様にし、防犯の事もあり合わせガラスとしました。採光や通風を考慮してゾーニングをしつつ、他にも使っていない部屋が多くあるのでご家族皆様が快適に住まえるように考えました。
既存店舗部分を和室にした。

リビングからは3枚引戸で間仕切ることが出来開放すると床段差無く広い空間になる。こちらは寝室となる。
既存店舗を反対から見たところ。

クローゼット扉内部は一間半の押入れ大の収納となっており布団の他大きな物の収納が出来る。

リビングとの仕切りとなる3枚引戸。
長年こちらの地域で店舗をされており、ご主人が他界されたこともあり同居となった。一階スペース以外にも二階もゆったりとした空間になっており、今回のゾーニングも既存キッチンダイニングを広げる形になったが娘様世帯のスペースも十分に確保できた。

ご家族のプライベート空間として店舗部分を改装。応接間や個室は他のスペースにあるので今回同居される娘様世帯のファミリー空間の充実がメインのリフォームとなった。また既存キッチンはお母さまと一緒に使い食事も一緒にされるので、ハイグレードで機能的な仕様とした。
このリフォームで採用したパナソニック商品
- インテリア建材 ベリティス
- 内装ドア ベリティス
- 造作部材 ベリティス
- 内装ドア・間仕切り ベリティス
- LED照明 シーリングライト






