兵庫県 N様邸
住み継いでいく家
織田建設(株)
| 建物種別 | 戸建て |
|---|---|
| 改修規模 | 全面リフォーム |
| 築年数 | 築40年 |
| 総工事面積 | 約123m2 |
| 施工期間 | 約180日 |
| 総工事費 | 約1780万円 |
| 地域 | 兵庫県 |
| 家族構成 | 夫婦+子供1人 |
| テーマ | 古民家再生、平屋建て、明るい部屋、オール電化、吹き抜け |
-
畳が丘で収納たっぷり
-
ゴロンとくつろげるタタミリビング
-
既存の梁を活かして解放感のある明るいダイニング
-
キッチン前のカウンターで軽食や子供のお勉強も
-
来客時には扉でさっと隠せるバック収納
-
キッチンからの眺め
-
ユニットバスと洗面台を新設
-
清潔感のあるお風呂
-
洗濯機スペース
-
洗面所に収納
-
お手入れのしやすいトイレ
-
本格和室の仏壇を残した客間
-
縁側は物干しスペースに
-
書斎付き寝室
-
ロフト付き子供部屋
-
秘密基地のようなロフト
-
瓦はそのままで外部も一新しました
-
玄関からファミリークローゼットへ
-
家族の収納を玄関横に集めました
築40年ほどの立派な日本家屋でした。母屋には水廻りもなく隙間風で大変寒くだれも住んでない状態でした。先代から引き継いだ若い夫婦が快適で自分達らしい暮らしができるようにリフォームしました。

新築かリフォームか悩みましたが、主人の生まれ育った本家をリフォームしました。古い和風だった家が新築のようになりビックリしています。以前は収納もなく物があふれていましたが、大容量の土間収納やファミリークローゼットのおかげでスッキリしました。動線もスムーズなので、家事や掃除が楽になり、時間の余裕もできました!リビングは小上がりの畳にしたのでくつろぎながら快適に過ごすことができ、お家時間を楽しんでいます。織田建設さんには、沢山の要望を叶えて頂き、感謝しています。

吉田 誠
地元でも立派な日本家屋でした。築40年との事ですが、大事にメンテナンスしていて屋根、柱、梁はしっかりしていました。昔ながらの間取りや、冬の寒さと現代の暮らしには向いてなかったです。ご要望は家事がしやすく、収納たっぷりとのことでしたのでフルリノベーションしてその要望をご叶えることにしました。これからも愛着をもってずっと暮らせる家になったと思います。
地元でも立派な日本家屋でした。築40年との事ですが、大事にメンテナンスしていて屋根、柱、梁はしっかりしていました。昔ながらの間取りや、冬の寒さと現代の暮らしには向いてなかったです。ご要望は家事がしやすく、収納たっぷりとのことでしたのでフルリノベーションしてその要望をご叶えることにしました。これからも愛着をもってずっと暮らせる家になったと思います。
リビング既存

畳が丘で収納たっぷり

ゴロンとくつろげるタタミリビング
ダイニング既存

既存の梁を活かして解放感のある明るいダイニング

キッチン前のカウンターで軽食や子供のお勉強も
キッチン既存

来客時には扉でさっと隠せるバック収納
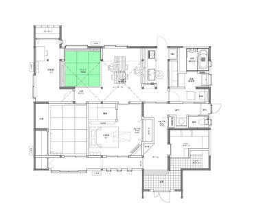
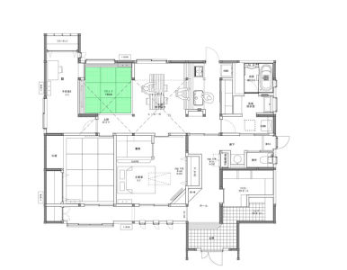
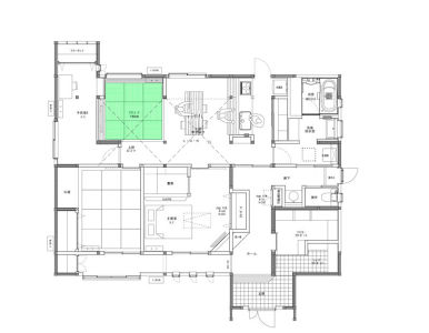
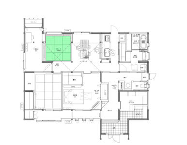
小さな部屋でたくさん区切られていて使いにくく、収納が少ない間取りでした。

若い夫婦が快適で自分達らしい暮らしができるような間取りにしました。
このリフォームで採用したパナソニック商品





