!収納充実計画! ~収納力のキュビオスと、使い方に応じた改装計画~
サンカラーズリフォーム 西神パルティ
| 建物種別 | マンション |
|---|---|
| 改修規模 | 改装・設備交換 |
| 築年数 | 築18年 |
| 工事面積 | 約43m2 |
| 施工期間 | 約20日 |
| 工事費 | 約365万円 |
| 地域 | 兵庫県 |
| テーマ | 明るい部屋、広々、その他 |
-
一面キュビオスで収納スッキリ。既存の床や家具にマッチしたオーク柄で圧迫感もなく、統一感のあるLDKに。
-
畳小上がりの建具はVERITISの面材で造作。来客時や就寝時には扉を閉めて完全個室に。
-
お布団のサイズを考慮して極力圧迫感が出ないよう計画した畳小上がり空間。L字に開くので普段は開放的に。取合収納は、お布団とご主人様のお洋服収納を計画。
-
畳小上がりは、椅子の座面高で計画したので、机を持ってくれば、お子様がリビングで勉強することも。キュビオス下には建築化照明を仕込んで、雰囲気ある空間に。
-
キュビオスはTVだけでなく、ステレオ置き場やCDの枚数等も考慮してプランニング。全面キュビオスでも圧迫感なくスッキリ。
-
以前もあった掘込み式の本棚。
-
書籍もたくさんお持ちだったので、ちょっとしたスペースに造作本棚を。取合収納は余すところなく空間を利用。
-
リビング唯一の収納2つ。どちらも奥行があり、使いにくい収納でした。
-
2つの収納を合わせて、ウォークインクローゼットに。両サイド・正面に使いやすい形状の可動棚を作り、1つの扉から収納全体が見渡せて、出し入れしやすく。
使用する物に応じた、使い勝手の良い収納リフォーム。
収納が少なく、家具の統一感が難しい空間になっていたLDKが、壁一面のキュビオスでスッキリとした収納充実の空間に!ご夫妻の寝室用に設けた畳小上がり下も収納で、使用される布団サイズやイス座面高を考慮して計画。照明や天井アクセントで、雰囲気あるシックな寝室に。L字コーナー建具を開放すれば元の空間とほぼ変わらない広さ感覚で、おしゃれでスッキリとしたLDK空間になりました!
広々としたLDKでしたが、造作収納が少なく、家具の統一感が難しい空間となっていました。

一面キュビオスで収納スッキリ。既存の床や家具にマッチしたオーク柄で圧迫感もなく、統一感のあるLDKに。

畳小上がりの建具はVERITISの面材で造作。来客時や就寝時には扉を閉めて完全個室に。
LDKの一部に、寝室と収納を兼ねたスペースをご希望。

お布団のサイズを考慮して極力圧迫感が出ないよう計画した畳小上がり空間。L字に開くので普段は開放的に。取合収納は、お布団とご主人様のお洋服収納を計画。
工夫されて収納してましたが、よりスッキリ収納できる空間をご希望でした。

畳小上がりは、椅子の座面高で計画したので、机を持ってくれば、お子様がリビングで勉強することも。キュビオス下には建築化照明を仕込んで、雰囲気ある空間に。

キュビオスはTVだけでなく、ステレオ置き場やCDの枚数等も考慮してプランニング。全面キュビオスでも圧迫感なくスッキリ。
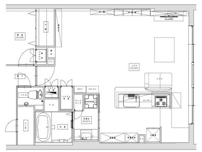
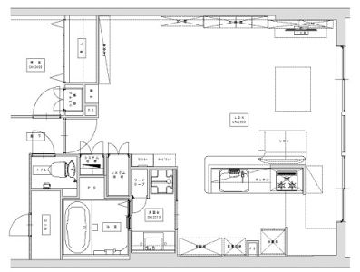
LDKはとても広々としたゆとりある空間でしたが、収納が少なく、家具の統一感も難しい空間になっていました。LDK唯一の収納2つも、奥行が深くて使いづらく、各箇所収納計画が必要な空間となっていました。

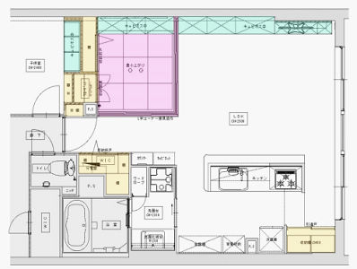
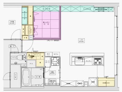
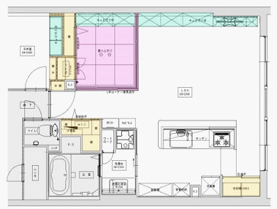
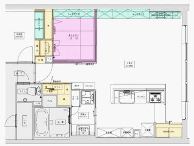
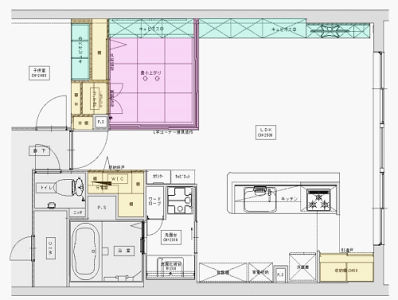
個室を子供室にするため、リビングに畳小上がりの和室空間を作って、ご夫妻の寝室に。壁一面のキュビオスで、LDKの収納力も充実しスッキリとした空間に。取合収納・既存のリビング収納・キッチン背面奥も、使い勝手良く改装しました。
- 壁面収納 キュビオス
- 収納用建具 ベリティス
- 内装ドア ベリティス
- LED照明 ダウンライト
- 照明 建築化照明





