岡山県 N様

自然光があふれ、冬も暖か。
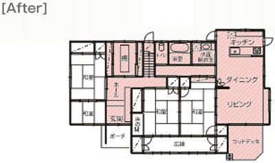
明るく開放的なLDKのある、エコな住まい。

(株)中祥建設
お店の情報・お問い合わせ 
データ
築年数 築24年
施工期間 約690日
地域 岡山県
家族構成 一世帯3人
テーマ 明るい部屋、広々
お近くの「パナソニックの住まいパートナーズ」登録店
リフォームポイント

暮らしながら2年間に3回のリフォームを重ねて、夢を実現。
見違えるほど明るくなって、家族や友人が集うにぎやかなLDK0に。
太陽光発電システムとIHで光熱費も大幅にカットされました。

お客様の声
子供たちが巣立ち、ふと気づけばわが家の住みにくさが気になるようになりました。お陰さまで今では居心地がよく、友人や娘が集う、いつもにぎやかな住まいになりました。
担当者の声
(株)中祥建設 代表取締役 阪口 善男 様

最初に外装塗装をリフォームされた時の職人の仕事ぶりを気にいってくださり、その後3回にわたってリフォームの相談をお受けすることができました。当社の強みは、大工や左官工、瓦職人など、多くの職人を自社で抱えていること。お客様のご希望に、きめ細やかにお応えすることができました。
ビフォーアフター
ビフォー

アフター

このリフォームで採用したパナソニック商品
  • リビエ クローゼット扉[終了品]
施工店情報
見なおし隊
(株)中祥建設

〒710-0016
住所:岡山県倉敷市中庄2881-55
電話:086-462-1625 FAX:086-464-6408

お店の情報・お問い合わせ
(株)中祥建設のリフォーム事例一覧
近くのお店を探す

Panasonicの住まい・くらし SNSアカウント