岡山県 N様
自然光があふれ、冬も暖か。
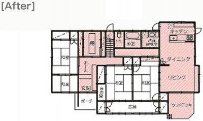
明るく開放的なLDKのある、エコな住まい。
-
LDKと和室をつなげて、天窓から自然光が降り注ぐ明るいワンルームに。ホワイトの天井・壁をダークブラウンの建具が引き締めて落ち着いた雰囲気の空間になりました。
暮らしながら2年間に3回のリフォームを重ねて、夢を実現。
見違えるほど明るくなって、家族や友人が集うにぎやかなLDK0に。
太陽光発電システムとIHで光熱費も大幅にカットされました。
子供たちが巣立ち、ふと気づけばわが家の住みにくさが気になるようになりました。お陰さまで今では居心地がよく、友人や娘が集う、いつもにぎやかな住まいになりました。
(株)中祥建設 代表取締役 阪口 善男 様
最初に外装塗装をリフォームされた時の職人の仕事ぶりを気にいってくださり、その後3回にわたってリフォームの相談をお受けすることができました。当社の強みは、大工や左官工、瓦職人など、多くの職人を自社で抱えていること。お客様のご希望に、きめ細やかにお応えすることができました。
最初に外装塗装をリフォームされた時の職人の仕事ぶりを気にいってくださり、その後3回にわたってリフォームの相談をお受けすることができました。当社の強みは、大工や左官工、瓦職人など、多くの職人を自社で抱えていること。お客様のご希望に、きめ細やかにお応えすることができました。

このリフォームで採用したパナソニック商品
- 内装ドア リビエ[終了品]






