兵庫県 F様邸

家で一番明るくてロケーションの良い場所を最幸の寛ぎ空間にしました。

サンカラーズリフォーム ステップガーデン
お店の情報・お問い合わせ 
データ
建物種別 戸建て
改修規模 全面リフォーム
築年数 築26年
総工事面積 約246m2
施工期間 約105日
総工事費 約2800万円
地域 兵庫県
家族構成 お義母様 奥様 息子様 娘様
テーマ 団らんキッチン、二世帯、バリアフリー、明るい部屋、ペット、広々、その他
お近くの「パナソニックの住まいパートナーズ」登録店
リフォームポイント

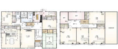
2間続きの本格的和室と広縁を家族の集う広いLDKにして食事を作る・食べる・TVを見る・寛ぐ・洗濯物を干す、ワンちゃんと遊ぶ・お客様を招く等、家族みんなで最高の場所を最幸に使って頂けるようにしました。仏間や床の間・違い棚といった本格的な設えは8帖の和室に新設して風情を残しました。元のキッチンだったところは勝手口から入ってちょっとした畑仕事の長靴や道具を収納出来るようにして、奥様の寝室も新設しました。洗面脱衣から繋がるウォークインクローゼットも便利に使って頂けます。

お客様の声
最初和室2間を無くすとLDKを気持ちよく使えるのは分かっていたのですが、不安もありどうしようかなと思っていた時に、図面とパースで様変わりした家のイメージを見せて頂き、こういう風に使えたらいいなぁという楽しみな気持ちに変わりどんどん話が進んでいきました。8帖の和室も大工さんの腕で、立派な床の間や仏間を再現して頂け良かったです。義母や息子・娘・私の部屋も快適になり収納も充実しました。広さはあったのですが食後寛ぐのは4.5帖の北側の和室だったのが今は広いリビングに皆集まっています。
担当者の声
米谷久美子

1階の大きな間仕切り移動がポイントで、元の和室2間続きと広縁をLDKにして浴室・洗面を広くとり、ウォークインクローゼットを新設した。勝手口から通じる部分に外で使う用具等を収納できるように物入を作り大容量のクローゼットのある奥様の寝室も新たに作った。真壁の和風建築だったので床天井も解体し、壁も大壁に作り替えた。玄関とホールは既存格天井の趣を残し左官や床材・玄関収納・間接照明で和の雰囲気を残した。2階は和室を洋室に変え内装建具も一新させ各個室を充実させた。
ビフォーアフター
ビフォー

広いが収納も少なく内装も古くなってきた。玄関引戸も断熱性能が低く寒い。

アフター

玄関ドアも断熱性能の良いものに新設し、玄関収納も充実させ間接照明も増やした。

ビフォー

アフター

既存格天井を生かして明るめの珪藻土壁にして、床を張替え玄関収納コンポリアを土間と廊下に設置した。旅館のように落ち着いた品の良い空間になった。

ビフォー

アフター

既存和室をLDKにしたので入口も洋風建具に入れ替え和洋折衷を上手く融合させるよう床や建具はチェリー柄にした。

ビフォー

元の玄関収納では全部の靴は納めきれなかった。また玄関先が小さなブラケットだけだったので暗かった。

アフター

玄関収納コンポリアに天袋収納も新設し明るめの間接照明も設置。玄関土間も大判のタイルを貼って豪華に仕上げた。

ビフォー

アフター

入口を入ると明るめの珪藻土壁とチェリー柄の床・建具・玄関収納と間接照明が融合する品格のある雰囲気が奥まで繋がる空間となった。

ビフォー

LDKが一番快適な場所にでき、各人の部屋が充実し、水回りが機能的で美しくなってとても快適です。1階のウォークインクローゼットや勝手口から入る外部専用の物入等も便利です。

アフター

2間続きの本格的和室と広縁を家族の集う広いLDKにして食事を作る・食べる・TVを見る・寛ぐ・洗濯物を干す ワンちゃんと遊ぶ・お客様を招く等家族みんなで最高の場所を最幸に使って頂けるようにしました。仏間や床の間・違い棚といった本格的な設えは8帖の和室に新設して風情を残しました。

施工店情報
見なおし隊
サンカラーズリフォーム ステップガーデン

〒651-1302
住所:兵庫県神戸市北区藤原台中町1-4-1 ステップガーデン藤原台A棟1F
電話:0120-813-031 FAX:078-984-5132

■建設業 建設業許可 兵庫県知事許可(般-2)第108842号

お店の情報・お問い合わせ
サンカラーズリフォーム ステップガーデンのリフォーム事例一覧
近くのお店を探す

Panasonicの住まい・くらし SNSアカウント