家族が集まる吹き抜けのあるリビングダイニング。
- 物件全体
- キッチン・ダイニング・リビング
- 浴室
- 洗面・その他
- トイレ
- 玄関・廊下
スマイリングにしかわ
| 建物種別 | 戸建て |
|---|---|
| 改修規模 | 改装・設備交換 |
| 築年数 | 築40年 |
| 総工事面積 | 約76m2 |
| 施工期間 | 約90日 |
| 総工事費 | 約1800万円 |
| 地域 | 京都府 |
| 家族構成 | ご夫婦 お二人暮らし |
| テーマ | 団らんキッチン、明るい部屋、オール電化、吹き抜け、広々 |
-
間取り変更にて広々とした明るい空間に。
-
フラット対面キッチンでご家族様と顔を見ながら会話が弾みます。
-
お部屋のデッドスペースを蓄熱暖房機の設置場所だけでなく殺風景にならないよう飾り棚でアクセント、ご主人様がお選びされたクロスがマッチしモダンに。
-
梁を活かした吹き抜けに仕上げました。梁にはスポット照明で壁を照らし雰囲気を演出。二階の収納部屋の明かり取に内装窓を設置しリビングから見渡すと良いアクセントになりました。
-
ご主人様の拘りチェッカー熱処理ガラス、内装扉 クラフトレーベル。床のヘリンボーン柄とマッチしています。
-
解体時に壁に空間を発見しニッチ飾り棚で空間を活用しました。
-
抜けない柱を利用し収納棚を設置。
-
階段下を有効活用しパソコンテーブルを設置。コンパクトな書斎に変身、ネット回線、電話線は全てこちらに集約しスッキリ。
-
ご主人様お気に入りのヘリンボーン柄。アーキスペックフロアーWお洒落なリビングダイニングですね!
-
元は棚無の物置をパントリーに変更し可動棚で収納力UP。
-
オフローラのフラットラインLED照明、浴室暖房乾燥機をご採用頂きました。
-
洗面台をランドリールームと入れ替えて動線を良くしました。勝手口を塞ぎ暖かくなりました。
-
浴室横にランドリールームを移し入浴時すぐに洗濯物を洗濯機に投入できますね。
-
トイレの場所を移動させアラウーノをご採用頂き快適に。足元には明り窓を設け太陽光を入れ清潔感を演出
-
クラフトレーベルのドアと壁にはニッチを設けてお洒落なおトイレに。
-
最新のリフォーム引き戸サッシに交換し防犯&断熱効果もUP!
-
床はベリテスフロアーを張り、壁は新壁から大壁に変更しクロスとダウンライトで明るく和モダンに。
-
廊下にあった押入れはクローゼットに変更し和室入口の調和と収納力UPに。
-
同じように床をベリテスフロア張り、新壁から大壁に変更しクロスとダウンライトで明るく。
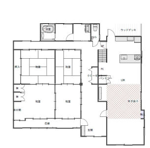
間取り変更で広い空間をご提案させて頂き、大人数でも広々と感じられるよう二階納戸の一部を吹き抜けにし、解放感ある空間を演出させて頂きました。断熱材が使用されておらず、寒さ対策に断熱材+真空ガラスをご提案し、一日中陽だまりの様な暖かさを実現する為に蓄熱暖房機を設置させて頂きました。

築40年以上の立派な日本建築のお家で、梁や柱を活かした間取り変更で広々としたリビングダイニングになりました。ご近所にお住いのお嬢様は施工中に幾度とお顔を出して頂き、完成を楽しみにしていただいていました。お施主様の思っておられる仕上がりとギャップが生じないよう施工前、施工中とも何度も打合せをさせて頂き想像以上の仕上がりに満足頂きました。
広々とした空間にしたい。

間取り変更にて広々とした明るい空間に。

フラット対面キッチンでご家族様と顔を見ながら会話が弾みます。

お部屋のデッドスペースを蓄熱暖房機の設置場所だけでなく殺風景にならないよう飾り棚でアクセント、ご主人様がお選びされたクロスがマッチしモダンに。

梁を活かした吹き抜けに仕上げました。梁にはスポット照明で壁を照らし雰囲気を演出。二階の収納部屋の明かり取に内装窓を設置しリビングから見渡すと良いアクセントになりました。

ご主人様の拘りチェッカー熱処理ガラス、内装扉 クラフトレーベル。床のヘリンボーン柄とマッチしています。
家族が集まった時にでもゆとりのある空間となりました。吹き抜けや飾り棚の発想はなく提案して頂いて良かったです。全てお気に入りです!

立派な日本建築でしたのでリフォームしない箇所とのバランスを考慮しデザイン致しました。施工中は毎日差し入れまでして頂いた事、私の提案の際は「西川さんに任せます!」と信頼を頂き施工を進めさせて頂きました事に感謝しています。





