設備一新、自然豊かなロケーションを楽しめるちょっと贅沢なセカンドハウス
サンカラーズリフォーム 御影店
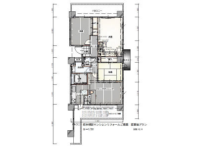
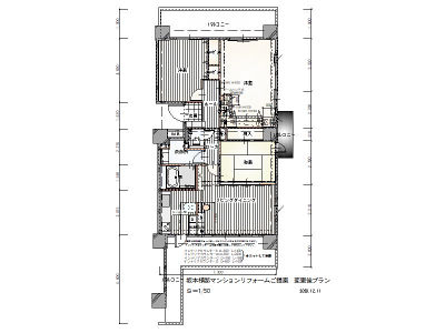
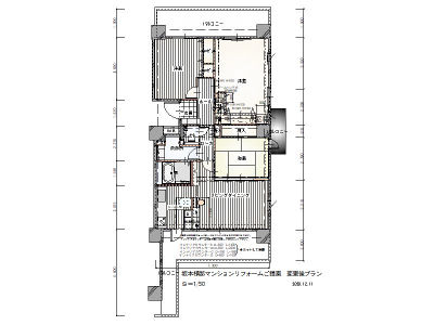
| 建物種別 | マンション |
|---|---|
| 改修規模 | 全面リフォーム |
| 築年数 | 築25年 |
| 総工事面積 | 約85m2 |
| 施工期間 | 約45日 |
| 総工事費 | 約550万円 |
| 地域 | 兵庫県 |
| 家族構成 | 2人 |
| テーマ | 明るい部屋、広々 |
-
カウンター下にダイニング側からも使えるカップボードを設置。W1350の大きさでカウンターを伸ばして軽食を取ったりちょっと書き物をしたりするのに便利。
-
キッチン側のカップボードとダイニング側のカップボードをカウンターをジョイントして設置し終わったところ。奥行が1050程ある大きなカウンターが出来キッチンとダイニング側が繋がるような形で仕上がった。
-
夜間のダイニングの様子
-
ペンダント照明と和室からの光が見えるリビングダイニング
-
ほっとくリーンフードやラクする―シンクを採用してお手入れも楽で美しさと機能的なキッチンをご提案。
-
キッチン側からは炊飯器やポット等の湯気がでるような家電収納が可能なスライド機能が付いたカップボードを採用。カップボード上をオープンにした事によりリビングの方まで見渡せて開放的なキッチンになった。
-
日中もデザイン的に既存の床の雰囲気に合う和室になった。
-
和室の照明を灯けた様子。
-
アラウーノの手洗い付きタンクレストイレを採用した。奥様の選ばれたクロスがよりグレードアップしたトイレ空間に繋がった。
-
壁から壁にピタッと納まるようにCラインで考え両袖壁を鏡面石目のボードを貼った。ホテルのような豪華な雰囲気が出る事を考えて提案した。
-
洗濯機スペースの上も通常の棚を設置するのでは生活感も出やすいのでランドリーラックを採用した。
-
正面から見てピタッと納まるように壁面をふかしすっきりと見えるように考えた。
-
普段は戸建てにお住まいでこちらは別宅のような感じだったのでライン照明やアクセントパネル・エステケアシャワー・スゴピカ浴槽などを採用し清掃性もよく美しく機能的な浴室を提案した。
-
リビングに繋がる廊下の床を張り替え玄関コンポリアを新設。収納力も増え、デザインもすっきりした。ダウンライトもLEDに新設。
-
リビングに繋がる廊下の床を張り替え玄関コンポリアを新設。収納力も増え、デザインもすっきりした。ダウンライトもLEDに新設。
-
クローゼット内部の様子
-
CH2700と高くパナソニックの折れ戸H2350を採用しても低く感じるような開放的な空間にL字型にクローゼットを新設して2室を繋げた事のメリットを生かせるようにした。
-
グリーンのアクセントクロスとガラス面の大きな引戸を新設した。
-
CH2700と高くパナソニックの折れ戸H2350を採用しても低く感じるような開放的な空間にL字型にクローゼットを新設して2室を繋げた事のメリットを生かせるようにした。
-
2室を繋げたので壁面に多少の段差はあるが広くなって解放感がでた。窓からは自然が広がる景色が見えて良い空間になった。
-
二室を繋げたので、インテリアダクトがい直線には繋がらず少しずれたがこれも照明が灯くと違和感がない。
-
メイクをしたり、書き物をしたりと色々に使えます
-
ブラック基調の石目のクロスを貼ってアクセントにした。
現在一戸建てにお住まいで、ご主人が殆ど単身赴任で不在という事で娘さんの近くのマンションを購入し全面改装をされました。別宅という事で非日常的な雰囲気と各設備には今迄なかった機能的な物を採用して日々を楽しく過ごして頂けるような空間を提案。奥様の部屋は2室を繋げ広くしてロケーションの良い窓からの景色を楽しめるように。独立型キッチンは冷蔵庫設置の壁を残してカップボード上を開放し繋がりを持たせた。既に張替済みのフローリングや既存ドアに合うような色味で和室の建具もアルミ製の縦重格子デザインを特注し夜間はこぼれる優しい光を楽しめるようにした。洗面・浴室共にホテルライクな仕上げを目指した。


写真は完工直後のもので家具などは入っていないのですが、全て新しく購入されて日常とは違う使い方を楽しまれています。シンプルでデザインも綺麗で掃除がし易い浴室・洗面・トイレ・キッチンと全てパナソニックのものを使って頂き内装の雰囲気と合ったグレード感のあるお住まいになったと思います。購入時にはすべての設備も一新された状態でしたが使い勝手やデザインなど、お客様が満足するには足らないもので一つひとつを自分の暮らしの為に丁寧に選び施工して形になったものは意味合いも深くコロナ禍の工事であり、完成後は旅行もままならないのでこの別宅で楽しんで頂いていることに喜びを感じております。
リビングダイニングとは分断された独立型のキッチンだった

カウンター下にダイニング側からも使えるカップボードを設置。W1350の大きさでカウンターを伸ばして軽食を取ったりちょっと書き物をしたりするのに便利。
キッチンとダイニング側の壁を一部撤去した施工中写真。残している壁に冷蔵庫を設置する。

キッチン側のカップボードとダイニング側のカップボードをカウンターをジョイントして設置し終わったところ。奥行が1050程ある大きなカウンターが出来キッチンとダイニング側が繋がるような形で仕上がった。

夜間のダイニングの様子

ペンダント照明と和室からの光が見えるリビングダイニング
設備の機能も全てが奥様のご要望とは違うもので新しく入替えて売っていたようで入替えした。

ほっとくリーンフードやラクする―シンクを採用してお手入れも楽で美しさと機能的なキッチンをご提案。
別々の洋室があり子供室のような感じで使われていた。全体的に設備の機能が低く、一新したいとお考えだった。

2つの洋室を繋げ、大容量のクローゼットとデスクを設け、快適な奥様の部屋にした。ロケーションも良く、快適。





