終の棲家はホテルライフ~「敢えて年相応の家に住まない!」
歳を重ねるからこそ・・・スタイリッシュな空間で心身ともに毎日フレッシュ
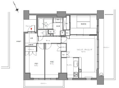
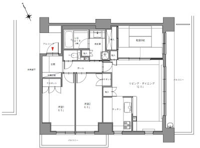
- 物件全体
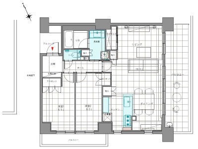
- キッチン・ダイニング
- リビング
- 外構・エクステリア
- 寝室
- トイレ
株式会社シンエイ・シンエイリフォーム
| 建物種別 | マンション |
|---|---|
| 改修規模 | 全面リフォーム |
| 築年数 | 築10年 |
| 総工事面積 | 約76m2 |
| 施工期間 | 約75日 |
| 総工事費 | 約560万円 |
| 地域 | 兵庫県 |
| 家族構成 | ご夫婦2人 |
| テーマ | 団らんキッチン、バリアフリー、明るい部屋、広々、その他 |
-
フラット対面キッチンからご主人と料理の受渡しや洗い物の受け取りもラクラク。おかげで家事に専念できる。友人が集まった時は皆が料理に加わり、疎外感がなくなった。
-
キッチンの手元照明は集光タイプのスポットライトを採用し、ひと目惚れのインダストリアルなペンダントをプラス。照明は実用的なだけでなくおしゃれな空間づくりにもかかせません。
-
「やってよかった☆」奥様のキッチンお勧め(その1)・・・トリプルワイドガスコンロ→よく遊びに来てくれる近くに住むお嫁さんと2人でキッチンに並んでも、効率的で料理がはかどり楽しい料理タイムとなっている。
-
ペニンシュラ型のサイズ合せによってできた幅21㎝のスキマ収納は、天井の木目柄と合わせたインテリアカウンターの採用でおしゃれ感を崩さずに調味料やストック類などを収納できるようになった。
-
「やってよかった☆」奥様のキッチンお勧め(その2)・・・自動水栓→手が汚れていても水栓が汚れない。なんといっても炊事が効率的になった!
-
和室の間仕切壁を取っ払ってリビングに取り込むことによって、広くゆったりとしたリビングが実現した。殺風景だった壁を、タイルや間接照明で演出することで、空間にメリハリができた。
-
和室を取り込んだことで開放的なリビングに!押入をリビング収納とし、襖を3枚連動引戸にしたことで、間口の3分の2が開放できるためとても便利に。
-
バルコニーから室内を望む
-
室内からバルコニーを望む
-
バルコニーには温かみのあるエクステリアタイルを敷き詰め、LDKと一体化したアウトドアリビングに。キッチンで料理しながら3人のお孫さんたちが楽しく遊ぶ姿が見えるようになった!
-
テーマカラーのグレーをアクセント壁にしてまとまり感を演出。お手持ちの木目のベッドを配置すれば仕上がり。
-
照明器具もLEDダウンライトに取替えてすっきり空間に。
-
手洗いカウンターはインテリア性を重視して木目柄をご選択。トイレは自動水栓にしたことで、清潔の保持はもちろんコロナ感染防止対策にもなり、来客時にも安心してご使用して頂ける。
●和室を取り込んで広々リビングに。キッチンの垂れ壁・腰壁を撤去後の天井の段差を活かして間接照明を計画しました。天井は茶色の木目柄とし、ダイニングの壁紙にはテーマカラーのグレーを採用。リビングTVコーナーの壁にも間接照明を計画してタイル張りとし、くつろぎ空間が完成しました。●インテリアは、ネイビーとグレーと茶色の3色をメインにしたインテリアで統一。フロア材をグレーの石目調に統一することで、生活感を感じないスタイリッシュな空間が実現。長年大事に使ってこられたイタリア家具カッシーナのダイニングセットとソファも納まるべきぴったりの場所を与えられました。
終の棲家は年齢を重ねているからこそ毎日が楽しくなる空間にしたいとかねてから考えておられたK様。遠くに住んでおられる娘様ご夫婦の新居を参考に、ありきたりではなくこだわりのリフォームを目指されました。奥様のご要望でフロア材をスタイリッシュなグレーの石目調で全室統一され、ネイビー・グレー・ダークブラウンの3色を基調として次々に思い切ったデザインを選択されました。照明プランもこだわり、ホテルライクな居心地の良い空間が完成しました。
空間の隔たりを感じさせる対面キッチン。友人がよく集まるが、キッチンとの一体感がなく、おもてなしの用意をしていると一人だけ疎外感を感じていた。

フラット対面キッチンからご主人と料理の受渡しや洗い物の受け取りもラクラク。おかげで家事に専念できる。友人が集まった時は皆が料理に加わり、疎外感がなくなった。
光が届かない閉鎖的なキッチン。

キッチンの手元照明は集光タイプのスポットライトを採用し、ひと目惚れのインダストリアルなペンダントをプラス。照明は実用的なだけでなくおしゃれな空間づくりにもかかせません。
限られたキッチンスペースは狭くて一人立てばいっぱいに。

「やってよかった☆」奥様のキッチンお勧め(その1)・・・トリプルワイドガスコンロ→よく遊びに来てくれる近くに住むお嫁さんと2人でキッチンに並んでも、効率的で料理がはかどり楽しい料理タイムとなっている。
マンションのためPS(パイプスペース)位置に縛られてキッチンの位置は大きく替えられない。

ペニンシュラ型のサイズ合せによってできた幅21㎝のスキマ収納は、天井の木目柄と合わせたインテリアカウンターの採用でおしゃれ感を崩さずに調味料やストック類などを収納できるようになった。

「やってよかった☆」奥様のキッチンお勧め(その2)・・・自動水栓→手が汚れていても水栓が汚れない。なんといっても炊事が効率的になった!
●対面キッチンは吊戸があるため光が入りにくく閉鎖的で暗かった。●お手持ちのダイニングテーブルやソファを配置するにはリビングが狭い●広いバルコニーはゆったりしているが、殺風景。

●吊戸を撤去しフラット対面ペニンシュラ型キッチンにすることでLDとの一体感を持たせた。更に和室を取り込んで広々LDKに。●バルコニーにはエクステリアタイルを敷き詰めてLDKと一体的なアウトドアリビングに。
- キッチン ラクシーナ
- カップボード アクティブウォール
- 造作部材 ベリティス
- 照明 スポットライト
- LED照明 ダウンライト
- 内装ドア ベリティス
- 収納用建具 ベリティス
- 床暖房 フリーほっと
- 照明器具
- インテリア建材 ベリティス
- トイレ アラウーノS
- トイレカウンター TS





