兵庫県 O様邸
リフォームで実現した「家族が集う家」
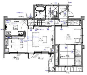
- 物件全体
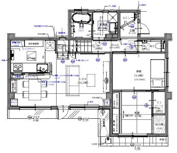
- キッチン・ダイニング・リビング
株式会社ライフライン
| 建物種別 | 戸建て |
|---|---|
| 改修規模 | 全面リフォーム |
| 築年数 | 築50年 |
| 総工事面積 | 約60m2 |
| 総工事費 | 約2000万円 |
| 地域 | 兵庫県 |
| 家族構成 | 本人 |
| テーマ | バリアフリー、明るい部屋、広々 |
-
間取り変更で広々LDKに。キッチンからリビングが見渡せるので家族と楽しくコミュニケーションしながら料理ができる空間に。
-
間取り変更で広々と、ダウンライトで明るいLDKに。リビングを見渡せるキッチンと庭を眺めながら寛げるリビングに。
1人暮らしのお父様が安全に楽に暮らせて、また娘様達が時々帰省してきた時に親子で楽しく、のんびり寛げる家に。

とても使いやすく大満足です。娘の要望を須藤さんが叶えてくださったおかげです。実は雨漏りが発生してリフォームしようか迷っている間に妻が病気になり亡くなってしまいました。こんなに見違えるようになるのだったらもっと早く元気なうちにリフォームしておけばよかったと後悔しています。

須藤 陽子
娘様がお父様の1人暮らしを心配されていて、IHだったり段差を無くしてバリアフリーにと、そんな思いを組み込み、またご実家で娘様がお父様と過ごすのに楽しくできる様な空間作りと、お母様との思い出も大切にした空間を作りました。
娘様がお父様の1人暮らしを心配されていて、IHだったり段差を無くしてバリアフリーにと、そんな思いを組み込み、またご実家で娘様がお父様と過ごすのに楽しくできる様な空間作りと、お母様との思い出も大切にした空間を作りました。
狭く暗いキッチンスペースをどうにかしたい。

間取り変更で広々LDKに。キッチンからリビングが見渡せるので家族と楽しくコミュニケーションしながら料理ができる空間に。
家族が集える空間に。

間取り変更で広々と、ダウンライトで明るいLDKに。リビングを見渡せるキッチンと庭を眺めながら寛げるリビングに。
水廻りが小さく使いづらい。LDKが小さい。

LDKの設備や風呂、トイレの位置も変更して庭をゆっくり眺められるようになりました。
このリフォームで採用したパナソニック商品





