子供室からも、収納に使えるようにしたい!
- 物件全体
- ダイニング・リビング
- 子供部屋
- キッチン
- 洗面
サンカラーズリフォーム 西神パルティ
| 建物種別 | マンション |
|---|---|
| 改修規模 | 改装・設備交換 |
| 築年数 | 築18年 |
| 工事面積 | 約3m2 |
| 施工期間 | 約20日 |
| 工事費 | 約40万円 |
| 地域 | 兵庫県 |
| テーマ | 明るい部屋、広々、その他 |
-
左側上部は奥行450のキュビオスを埋め込み、学校道具入れに。その下の壁部分は、反対側からの布団入れ。反対側畳小上がり高分は、収納ケースなどで自由なOPEN収納空間にしました。
-
右側上部の反対側は、ご主人様のお洋服のクローゼットを計画し、残った奥行を子供室の本棚に。下部は、子供室側からの物入にして、双方から余すところなく空間を利用しました。
1つの収納場所を、子供室と畳小上がりの双方から互い違いに、収納物に応じた改装計画!
寝室が畳小上がり側になるため、お布団やご主人のお洋服は、反対側からの出し入れに。お布団は下部・お洋服は上部と、使いやすい高さを考慮し、残った空間を子供室の学校道具や本棚・その他の物入など、奥行の違うものをそれぞれ収納できる空間にしました。
子供室になる個室左側、元は押入。寝室が反対の畳小上がり側になるので、お布団の出し入れは反対側をご希望。

左側上部は奥行450のキュビオスを埋め込み、学校道具入れに。その下の壁部分は、反対側からの布団入れ。反対側畳小上がり高分は、収納ケースなどで自由なOPEN収納空間にしました。
子供室になる個室右側は、ご主人様のお洋服が入っていたシステム収納でした。こちらも反対側からの出し入れをご希望。

右側上部の反対側は、ご主人様のお洋服のクローゼットを計画し、残った奥行を子供室の本棚に。下部は、子供室側からの物入にして、双方から余すところなく空間を利用しました。
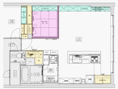
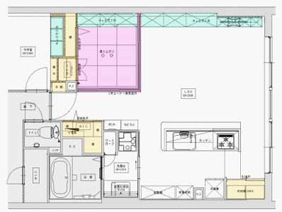
LDKはとても広々としたゆとりある空間でしたが、収納が少なく、家具の統一感も難しい空間になっていました。LDK唯一の収納2つも、奥行が深くて使いづらく、各箇所収納計画が必要な空間となっていました。

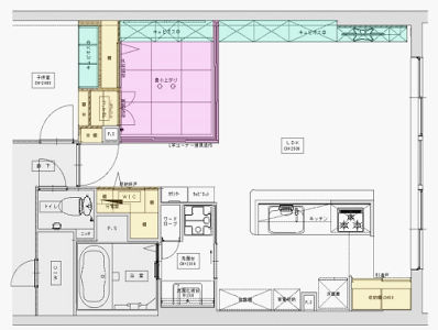
個室を子供室にするため、リビングに畳小上がりの和室空間を作って、ご夫妻の寝室に。壁一面のキュビオスで、LDKの収納力も充実しスッキリとした空間に。取合収納・既存のリビング収納・キッチン背面奥も、使い勝手良く改装しました。





