京都府 U様邸
家族の夢を叶えた さわやかな風が通る家
(株)木村工務店
| 建物種別 | 戸建て |
|---|---|
| 改修規模 | 全面リフォーム |
| 築年数 | 築30年 |
| 総工事面積 | 約47m2 |
| 施工期間 | 約90日 |
| 地域 | 京都府 |
| 家族構成 | 夫・妻・子供 |
| テーマ | 団らんキッチン、自然素材、明るい部屋、その他 |
-
和室の床の間と和室からつながる縁側には赤松の床材を使用しました。木の香りが心地のよい空間になりました。
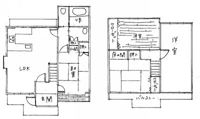
お家全面リフォームです。浴室スペースを増築したことで、LDKを広げ、新しく窓を作り、明るく風通しの良いLDKに変身しました。1階の和室と2階の洋室に赤松の床材を使用し、木の香りいっぱいの空間になりました。

台所・居間のスペースが狭かったので、明るく広々としたLDKを希望しました。少し増築することで、LDKが広く明るくなりとても快適な空間になりました。

藤本景子
築30年のお家の全面リフォームをご依頼いただきました。リフォーム前は台所・居間が少し狭く、ご家族でくつろげるLDKになるように提案しました。キッチンも使いやすいL型のカウンターキッチンにし、お話をしながら家事ができる空間になりました。
築30年のお家の全面リフォームをご依頼いただきました。リフォーム前は台所・居間が少し狭く、ご家族でくつろげるLDKになるように提案しました。キッチンも使いやすいL型のカウンターキッチンにし、お話をしながら家事ができる空間になりました。



和室の床の間と和室からつながる縁側には赤松の床材を使用しました。木の香りが心地のよい空間になりました。
LDKが狭く、くつろぐ空間がない。

浴室を増築し、LDKを広げました。家族が団らんできるスペースができる場所に。また、部屋と水回りの動線も考えた間取り変更をしました。





