兵庫県 F様邸
スタイリッシュな広々浴室を実現!
担当: 株式会社シンエイ・シンエイリフォーム 店舗情報
ビフォアアフター
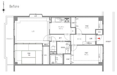
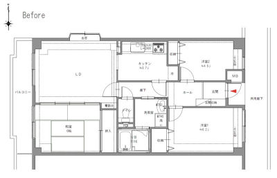
ビフォア:
アフター:フラットライン照明を気に入って採用されたユニットバス。壁は4面ともドラマホワイトで洗練された雰囲気に。
ビフォア:・部屋が分割されていて、LDKが狭い。
・浴室が狭い。
アフター:・和室の一部を利用してせまかった浴室を1116サイズ→1418サイズに。
・残りの和室をLDKに取り込むことにより、
3つの窓からの採光が入り明るい空間に。
・リビング収納やニッチ収納を作ることで、
家族のモノで雑然としがちなLDKもすっきり。
リフォームデータ
| 建物種別 | マンション |
|---|---|
| 築年数 | 築24年 |
| 工事面積 | 約3m2 |
| 施工期間 | 約32日 |
| 工事費 | 約130万円 |
| 地域 | 兵庫県 |
| 家族構成 | 夫婦+子ども1人 |
| テーマ | 団らんキッチン、明るい部屋、広々、その他 |
このリフォームで採用したパナソニック商品
リフォームポイント
「毎日使う浴室を広げたい。」ということがお施主様の一番のご要望でした。利用頻度の低い6畳和室を一部浴室に取り込む計画で、浴室の拡張が可能かどうかの検証のために解体工事を先行させて頂けたことはとてもありがたかったです。
お客様の声
・狭かった浴室を大きくすることが一番の要望だったので叶えてもらえてよかった。
・間取りや内装の相談にのってもらったことでありきたりにならなかった。
・全体的な統一感が取れていることがよかった。
・キッチン・洗面室・浴室・トイレは家族が毎日使うところ。広くなって気分がよい。
・洗面室とトイレのアール壁の提案が気に入っている。
担当者の声
同じマンション内の別室からの住み替え全面リフォームです。
家族皆が日常使う場所を広くしたいと考えておられたお施主様。キッチン・洗面室・浴室・トイレは家族が毎日使う場所ですので重点的に取り組みました。デメリットが生じる可能性もよく理解され、どこを犠牲にするかを慎重に考えられました。また、全体のデザインについてはリゾートホテルのような統一感を重視され、提案ごとにご家族で吟味していただきました。おかげさまで素敵な空間が完成しました。


