兵庫県 F様邸
毎日使うキッチンだから広くて快適な空間に!
収納たっぷりで、使いやすく。これから料理が楽しくなること間違いなし!
担当: 株式会社シンエイ・シンエイリフォーム 店舗情報
ビフォアアフター
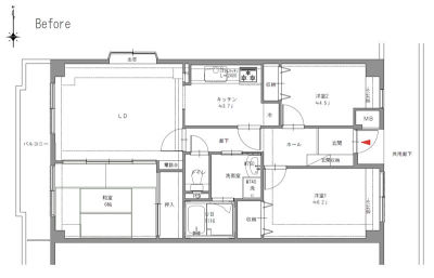
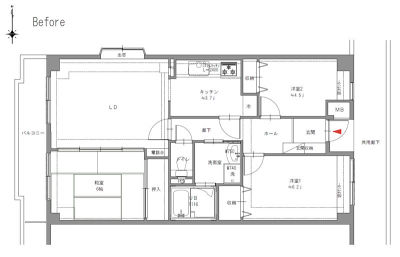
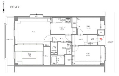
ビフォア:隣接する部屋の凹凸やあまり使われることのない扉。
アフター:キッチンは、スタイリッシュなヴィンテージメタル柄を採用されました。閉塞感を無くすために吊戸やカップボードの上部はアースホワイト柄を採用。明るく広々としたキッチンに生まれ変わりました。
ビフォア:
アフター:LDKからの主出入口にしぼり、廊下への扉を撤去。それによりカップボードは大きいサイズを計画できました。
ビフォア:
アフター:2400から600mm拡張し、3000mmのシステムキッチンに。毎日使うところだから、使いやすさと機能を重視した充実キッチンが完成!
ビフォア:・部屋が分割されていて、LDKが狭い。
・浴室が狭い。
アフター:・和室の一部を利用してせまかった浴室を1116サイズ→1418サイズに。
・残りの和室をLDKに取り込むことにより、
3つの窓からの採光が入り明るい空間に。
・リビング収納やニッチ収納を作ることで、
家族のモノで雑然としがちなLDKもすっきり。
リフォームデータ
| 建物種別 | マンション |
|---|---|
| 築年数 | 築24年 |
| 工事面積 | 約7m2 |
| 施工期間 | 約32日 |
| 工事費 | 約220万円 |
| 地域 | 兵庫県 |
| 家族構成 | 夫婦+子ども1人 |
| テーマ | 団らんキッチン、明るい部屋、広々、その他 |
このリフォームで採用したパナソニック商品
- キッチン ラクシーナ
- 照明器具
- (配線器具)アドバンスシリーズ
- 造作部材 ベリティス
リフォームポイント
キッチン空間を使いやすくするために、スペースと収納を充実させました。あまり使用されていなかった廊下への出入口を思い切って無くすことで、カップボードの寸法を大きくとることができました。また、キッチンを2400mmから3000mmに広げるために、隣接する洋室の収納をキッチンに取り込みました。まさに個室より共用空間を大事にするお施主様ならではの思い切ったご決断でした。おかげでキッチン空間が充実し、これから料理が楽しく快適になること間違いなし!
お客様の声
・狭かった浴室を大きくすることが一番の要望だったので叶えてもらえてよかった。
・間取りや内装の相談にのってもらったことでありきたりにならなかった。
・全体的な統一感が取れていることがよかった。
・キッチン・洗面室・浴室・トイレは家族が毎日使うところ。広くなって気分がよい。
・洗面室とトイレのアール壁の提案が気に入っている。
担当者の声
同じマンション内の別室からの住み替え全面リフォームです。
家族皆が日常使う場所を広くしたいと考えておられたお施主様。キッチン・洗面室・浴室・トイレは家族が毎日使う場所ですので重点的に取り組みました。デメリットが生じる可能性もよく理解され、どこを犠牲にするかを慎重に考えられました。また、全体のデザインについてはリゾートホテルのような統一感を重視され、提案ごとにご家族で吟味していただきました。おかげさまで素敵な空間が完成しました。


