兵庫県 K様邸
終の棲家はホテルライフ~「敢えて年相応の家に住まない!」
歳を重ねるからこそ・・・スタイリッシュな空間で心身ともに毎日フレッシュ
担当: 株式会社シンエイ・シンエイリフォーム 店舗情報
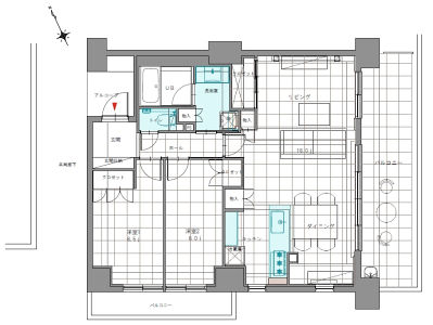
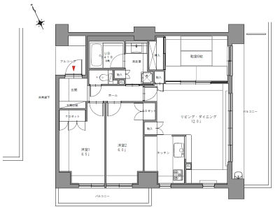
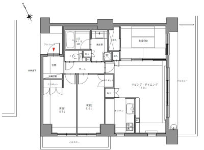
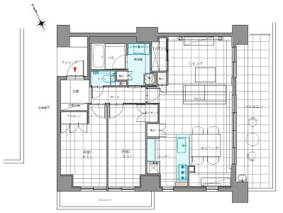
ビフォアアフター
ビフォア:空間の隔たりを感じさせる対面キッチン。友人がよく集まるが、キッチンとの一体感がなく、おもてなしの用意をしていると一人だけ疎外感を感じていた。
アフター:フラット対面キッチンからご主人と料理の受渡しや洗い物の受け取りもラクラク。おかげで家事に専念できる。友人が集まった時は皆が料理に加わり、疎外感がなくなった。
ビフォア:光が届かない閉鎖的なキッチン。
アフター:キッチンの手元照明は集光タイプのスポットライトを採用し、ひと目惚れのインダストリアルなペンダントをプラス。照明は実用的なだけでなくおしゃれな空間づくりにもかかせません。
ビフォア:限られたキッチンスペースは狭くて一人立てばいっぱいに。
アフター:「やってよかった☆」奥様のキッチンお勧め(その1)・・・トリプルワイドガスコンロ→よく遊びに来てくれる近くに住むお嫁さんと2人でキッチンに並んでも、効率的で料理がはかどり楽しい料理タイムとなっている。
ビフォア:マンションのためPS(パイプスペース)位置に縛られてキッチンの位置は大きく替えられない。
アフター:ペニンシュラ型のサイズ合せによってできた幅21㎝のスキマ収納は、天井の木目柄と合わせたインテリアカウンターの採用でおしゃれ感を崩さずに調味料やストック類などを収納できるようになった。
ビフォア:
アフター:「やってよかった☆」奥様のキッチンお勧め(その2)・・・自動水栓→手が汚れていても水栓が汚れない。なんといっても炊事が効率的になった!
ビフォア:●対面キッチンは吊戸があるため光が入りにくく閉鎖的で暗かった。●お手持ちのダイニングテーブルやソファを配置するにはリビングが狭い●広いバルコニーはゆったりしているが、殺風景。
アフター:●吊戸を撤去しフラット対面ペニンシュラ型キッチンにすることでLDとの一体感を持たせた。更に和室を取り込んで広々LDKに。●バルコニーにはエクステリアタイルを敷き詰めてLDKと一体的なアウトドアリビングに。
リフォームデータ
| 建物種別 | マンション |
|---|---|
| 築年数 | 築10年 |
| 総工事面積 | 約76m2 |
| 施工期間 | 約75日 |
| 総工事費 | 約560万円 |
| 地域 | 兵庫県 |
| 家族構成 | ご夫婦2人 |
| テーマ | 団らんキッチン、バリアフリー、明るい部屋、広々、その他 |
リフォームポイント
●和室を取り込んで広々リビングに。キッチンの垂れ壁・腰壁を撤去後の天井の段差を活かして間接照明を計画しました。天井は茶色の木目柄とし、ダイニングの壁紙にはテーマカラーのグレーを採用。リビングTVコーナーの壁にも間接照明を計画してタイル張りとし、くつろぎ空間が完成しました。●インテリアは、ネイビーとグレーと茶色の3色をメインにしたインテリアで統一。フロア材をグレーの石目調に統一することで、生活感を感じないスタイリッシュな空間が実現。長年大事に使ってこられたイタリア家具カッシーナのダイニングセットとソファも納まるべきぴったりの場所を与えられました。
お客様の声
年齢を重ねても気持ちは若くいたいという想いがあり、そのためにはいきいきと楽しく暮らすことが必要と感じていた。生活感を感じさせないホテルライフのような空間づくりが、毎日楽しく暮らせる秘訣ではないかという思いがあった。その思いを叶えてもらえて、快適度120%。コロナ禍で半リタイヤ生活を迎え、逆にそれが追い風となって「おうち愛」が増し、更に家にいる時間を大切にしようという思いが強くなった。思った通り、若々しく毎日快適に過ごしている。
担当者の声
林 清華 終の棲家は年齢を重ねているからこそ毎日が楽しくなる空間にしたいとかねてから考えておられたK様。遠くに住んでおられる娘様ご夫婦の新居を参考に、ありきたりではなくこだわりのリフォームを目指されました。奥様のご要望でフロア材をスタイリッシュなグレーの石目調で全室統一され、ネイビー・グレー・ダークブラウンの3色を基調として次々に思い切ったデザインを選択されました。照明プランもこだわり、ホテルライクな居心地の良い空間が完成しました。


