兵庫県 K様邸改修工事
今回のリフォームの主役、堀座卓を備えた小上がりの畳コーナー
担当: 株式会社アラカーサ 店舗情報
ビフォアアフター
ビフォア:大きな垂れ壁に立ち上がりをしっかりと確保したカウンター、少し閉塞感を感じます
アフター:玄関や畳コーナーから続く板張りの天井が開放的な大空間。玄関ホールの間仕切りをガラスにしたことで、空間の一体感と冷暖房効率が同時に得られました
ビフォア:
アフター:堀座卓のブラックアッシュがアースカラーでコーディネートした優しい空間の中でよく映え、心地いいアクセントになっています
ビフォア:
アフター:堀座卓の黒に合わせて収納下の壁面に素材感のあるスクラッチ石材を採用。間接照明の光が美しい陰影を生み出しています
ビフォア:
アフター:小上がりの畳コーナーが今回のリフォームのメインで、この堀座卓がその主役。モダンシリーズのすっきりとしたフォルムがシェードカーテンと優しく調和。テーブルランナーはカーテンと同じ素材で作っています
ビフォア:以前のキッチンは暗く、孤立したイメージ
アフター:キッチンからダイニング、畳コーナーまでオープンに繋がるワンフロアに一新。ゆったりと寛いでいただける空間になりました
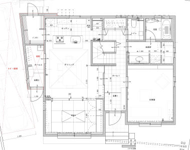
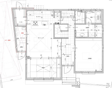
ビフォア:一般的な間取りではありますが、孤立した暗いキッチンや洗面化粧台の正面に窓がある洗面スペース、タンスを置くと使い辛かった細長い納戸など、気になる点はちらほらとありました。
アフター:玄関とLDKを緩やかに繋いで開放的な大空間とし、ぐるりと回遊できる動線を計画しました。サブ玄関を増築し、スペースの半分をパントリーとして活用。水回りは納戸をなくして再構築し、ゆとりのある空間に一新しました。使っていなかった和室は応接室に。将来はベッドルームとして使っていただける空間になっています。
リフォームデータ
| 建物種別 | 戸建て |
|---|---|
| 築年数 | 築28年 |
| 工事面積 | 約41m2 |
| 施工期間 | 約90日 |
| 地域 | 兵庫県 |
| 家族構成 | 二人 |
| テーマ | 団らんキッチン、広々 |
このリフォームで採用したパナソニック商品
リフォームポイント
今回のリフォーム最大のポイントは掘座卓を備えた小上がりの畳コーナーです。ご主人様たってのご希望で、この空間を起点に全体の構成を考えていきました。和が強調され過ぎないよう堀座卓はモダンシリーズをセレクトし、LDK全体のデザインも畳コーナーのスタイルをベースに計画。木や石などの素材が同系色でまとまり過ぎないよう配慮しながら、統一感や一体感も保たれるよう組み合わせを工夫しています。
お客様の声
えー!ここはどこ??ここまで変わる?
築26年、汚い、捨てられない、片付かないストレス、気軽に人を呼べない苛立ち、くつろぎのない空間、疲れのとれない日々、遂に別れを告げる決心をした!この決断ができるもう最後の年齢だと思ったからだ。癌も克服できたんだからやれると。そして、見事に生まれ変わった我が家!こんな日を迎えることができるなんて夢にも思ってなかった。玄関を入ると皆が、えー!これ住まい?わぁ!ホテルみたいなおトイレ!洗面所!と感動の嵐。元の面影は無し。アラカーサ様のセンスにお任せし、温かい素晴らしい職人さん達にも恵まれた。ただいま!おかえりなさい!まだ続いてほしかったくらいの楽しい工事期間も問題なくあっという間に過ぎ、遂に完成した!
毎日疲れて帰宅する夫は、車庫から増築した自動で鍵の開く裏口玄関の扉を開け、まずは、あー、いいなぁと入ってくる。食事を終えるやいなやすぐに畳コーナーに移動する。なんとそこには念願の掘り座卓ができたのだ。テレビを見ながら掘り座卓でくつろぐのが夢だった夫は、快適だなぁ、最高だなぁと何回言っただろう!コロナ禍の中、旅行にもいけない日々も旅館のごとく変貌を遂げた我が家で非日常を味わっている。何不自由なく至れり尽くせりの設計に大満足の毎日を過ごしている。あと何年生きられるかわからないけど、死ぬまでこの生まれ変わった我が家で過ごせたらと願っている。新しく和室から生まれ変わった応接室は、将来的には介護ベッドを入れ、介護部屋になる予定だ。そんな準備もでき、心のゆとりも生まれた。ほんとにやってよかったリノベーション!出会えてよかったアラカーサ様!と感謝の日々を過ごしている。
担当者の声
着工してから約3ヶ月間、プランニングにデザイン、工法や建材・設備機器の選定、造作家具の製作や増築、外壁の施工、外構工事の計画など、お施主様の理想を実現するために連日深夜まで悩み抜いた久しぶりに難航したリフォームです。通常の木造住宅とは異なり、撤去できる壁や柱が解体前に確定できなかったことがその要因。他にも施工中は色々な問題に直面しましたが、お施主様の寛大なお心と多大なるご尽力により、無事工期通りに完工しました。我々の命を守る大変なお仕事をされているご主人様。工事期間中に何度も緊急のオペに行かれたと翌朝聞きました。ご要望いただいた畳コーナーでゆったりと束の間の休息を楽しんでいただけると嬉しいです。そして奥様。住まわれながらの大規模改修だったことで、寒い時期にバスルームが使えなかったり、お洗濯ができなかったり、さまざまな不便をおかけしました。それでもお会いするたびに優しい言葉をかけてくださり、現場にはたくさんの差し入れまで。いつも元気をいただいていました。少しでも良い空間にしたいと現場でブラッシュアップしてくれた職人さんやメーカーさん、協力業者の方々に対しても感謝の気持ちでいっぱいです。みなさま本当にありがとうございました。


