兵庫県 N様邸
畳が丘で収納たっぷりのゴロンとできるリビング
担当: 織田建設(株) 店舗情報
ビフォアアフター
ビフォア:リビング既存
アフター:畳が丘で収納たっぷり
ビフォア:
アフター:ゴロンとくつろげるタタミリビング
ビフォア:ダイニング既存
アフター:既存の梁を活かして解放感のある明るいダイニング
ビフォア:
アフター:キッチン前のカウンターで軽食や子供のお勉強も
ビフォア:キッチン既存
アフター:来客時には扉でさっと隠せるバック収納
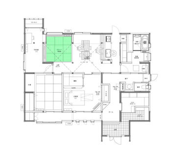
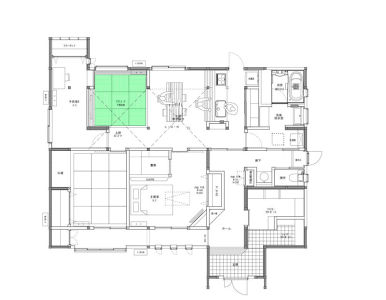
ビフォア:小さな部屋でたくさん区切られていて使いにくく、収納が少ない間取りでした。
アフター:若い夫婦が快適で自分達らしい暮らしができるような間取りにしました。
リフォームデータ
| 建物種別 | 戸建て |
|---|---|
| 築年数 | 築40年 |
| 施工期間 | 約180日 |
| 地域 | 兵庫県 |
| 家族構成 | 夫婦+子供1人 |
| テーマ | 古民家再生、平屋建て、明るい部屋、オール電化、吹き抜け |
このリフォームで採用したパナソニック商品
リフォームポイント
畳が丘で収納とゴロンとできるリビングに解決。
お客様の声
新築かリフォームか悩みましたが、主人の生まれ育った本家をリフォームしました。古い和風だった家が新築のようになりビックリしています。以前は収納もなく物があふれていましたが、大容量の土間収納やファミリークローゼットのおかげでスッキリしました。動線もスムーズなので、家事や掃除が楽になり、時間の余裕もできました!リビングは小上がりの畳にしたのでくつろぎながら快適に過ごすことができ、お家時間を楽しんでいます。織田建設さんには、沢山の要望を叶えて頂き、感謝しています。
担当者の声
吉田 誠 地元でも立派な日本家屋でした。築40年との事ですが、大事にメンテナンスしていて屋根、柱、梁はしっかりしていました。昔ながらの間取りや、冬の寒さと現代の暮らしには向いてなかったです。ご要望は家事がしやすく、収納たっぷりとのことでしたのでフルリノベーションしてその要望をご叶えることにしました。これからも愛着をもってずっと暮らせる家になったと思います。


