兵庫県 西宮市 M様邸
適「材」適所・適「広」適所・適「光」適所
担当: 株式会社シンエイ・シンエイリフォーム 店舗情報
ビフォアアフター
ビフォア:リビング南西の窓は幅1.5間あり高さは2.2m。まぶし過ぎて不快感を感じるほどで、始終カーテンを閉めっぱなしに。
アフター:窓の幅を1.0間のものに取替えて外部に庇を設置することにより、適度な光を取り入れる窓になりました。
ビフォア:幅1.5間の大型の出窓は南西側の窓と同じくまぶしすぎる上、両サイドの幅の狭い部分しか開閉ができず、東隣りのご実家へ行き来することができなかった。また、下部の収納は高さが低く使いづらいかった。
アフター:東側の窓の幅も西側と同様に1.0間幅の掃き出し窓に入替えました。お隣のご実家への行き来がスムーズになり、ご高齢のご両親の様子を見に行く動線が短くなりました。
ビフォア:化粧梁・カウンター・開口枠など重厚な雰囲気が時代を感じさせる。生活用品や飾り物などで散らかりがちな対面カウンター。
アフター:対面カウンターのダイニング側には奥様のご趣味であるブリザードフラワーを飾るためにニッチを計画。また、リビングから丸見えだったキッチン内部をタテ格子でゆるやかに仕切り開放感を残しました。
ビフォア:キッチンは対面型ではあったが、閉鎖的で暗かった。また広すぎるキッチンは動線が悪く、多すぎる収納は何をどのように収納するかわかりづらく、使いづらさを感じておられた。
アフター:L型キッチンをI型に変更し動線を改善。またシステムキッチンの収納は何をどこに収納するかを考えながらプラン。引出しタイプなので使いやすくなりました。全然使用していなかった食洗器はやめて電動昇降乾燥機をご選択。快適に利用されています。
ビフォア:造り付られた棚や吊戸のため、広いキッチンの割には食器棚を置くスペースがなく不便だった。収納の出し入れがしにくかった。
アフター:キッチンの壁面にはご主人様と楽しむお茶や紅茶をまとめて収納できるコーナーを造りました。ティータイムがグレードアップしそうですね!また窓側の吊戸を無くすことでキッチンの奥まで光が届くようになりました。
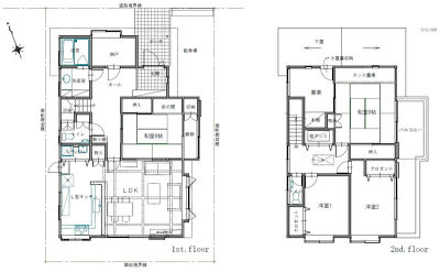
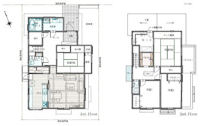
ビフォア:●キッチンの動線が悪く閉鎖的で暗かった。キッチン横の収納は奥行が深く整理しにくかった。●キッチンの雑然とした様子がリビングから丸見えだった。●洗面室は使い勝手の悪い収納が壁面に造り付けてあり暗かった。●トイレに収納が多すぎて使えていない。●ご主人様の本棚が2階の奥深い場所に造り付けられていた。
アフター:●L型キッチンをI型に変更し動線を改善。収納もしやすく明るい。併設したパントリーは便利●3帖の納戸を2帖の洗面室と入れ替え。ゆとりの洗面室で脱衣→洗濯物→入浴の動作が効率的に。●2階のタンス置場と納戸を見直して、ライブラリー空間に。ご主人様のたくさんの本を快適に収納し長居したくなる空間に。
リフォームデータ
| 建物種別 | 戸建て |
|---|---|
| 築年数 | 築29年 |
| 総工事面積 | 約114m2 |
| 施工期間 | 約105日 |
| 総工事費 | 約1300万円 |
| 地域 | 兵庫県 |
| 家族構成 | 夫婦二人 |
| テーマ | 団らんキッチン、バリアフリー、明るい部屋、広々、その他 |
リフォームポイント
●新築当時は昭和という時代も影響して大工さん主体で計画が進められました。できあがったキッチンは奥様の意見が反映されないものとなっていました。そのため広さはあるものの使い勝手や動線の悪いキッチンを30年ご不便を感じながら使ってこられました。念願のキッチンプランは提案図面やパースによる確認、使い勝手の実演をご一緒したりしながら出来上がりました。●キッチン・リビング・洗面室・トイレ等、光が届かず圧迫感があり閉鎖的だった空間を、明るく開放的なくつろぎ空間とするために、間取り替えや機器等の配置の工夫をしました。また、欲しいところに必要な広さで設置されていなかった収納を、生活動線や使い勝手を考慮しながら適「材」適所の収納に造り替えました。
お客様の声
●女性にとってキッチンは一番夢がふくらむところだと思いますが、新築当時キッチンの打合せを楽しみに待っていたら「もう発注しました。」と言われてしまいました。そんな苦い思い出を30年の時を経て今回のリフォームで払拭することができました。打合せではこちらの要望だけでなく使い勝手や動線・パントリーの収納などの提案もしていただき満足しています。●洗面室と納戸を入れ替えたことで洗面室空間にゆとりができたことや、ただのタンス置場と化していた収納をライブラリースペースに生まれ変わらせる提案を頂いたこともよかったです。
担当者の声
林 清華 戸建て住宅の全面リフォーム。M様の一番のご要望は、なんといってもキッチンの使い勝手の悪さを改善することでした。収納は多ければいいというものではない、また空間は広ければいいというものではない、ということは当然のことですが、それによって30年ご不便を感じてこられたM様から生の声をお聞きして、プランニングの大切さをあらためて実感させて頂きました。


