兵庫県 F様邸
旧キッチン側に少し広げて本格和室を作りました!仏間は既存再利用。
サンカラーズリフォーム ステップガーデン
| 建物種別 | 戸建て |
|---|---|
| 改修規模 | 全面リフォーム |
| 築年数 | 築26年 |
| 工事面積 | 約21m2 |
| 施工期間 | 約105日 |
| 地域 | 兵庫県 |
| 家族構成 | お義母様 奥様 息子様 娘様 |
| テーマ | 団らんキッチン、二世帯、バリアフリー、明るい部屋、ペット、広々、その他 |
-
押入れと旧キッチン側に拡張して床の間・違い棚と仏間を新設。
-
押入れと旧キッチン側に拡張して床の間・違い棚と仏間を新設。
-
押入れと旧キッチン側に拡張して床の間・違い棚と仏間を新設。
仏壇は以前特注で作ったものだったので、再利用を希望されていました。南西の和室にあった仏間を大工職方によりその部分を移設して床の間・違い棚・仏間を新設し、本格的な和室を新設。壁は明るめの珪藻土仕上げとし明るく風格のある和室とした。

最初和室2間を無くすとLDKを気持ちよく使えるのは分かっていたのですが、不安もありどうしようかなと思っていた時に、図面とパースで様変わりした家のイメージを見せて頂き、こういう風に使えたらいいなぁという楽しみな気持ちに変わりどんどん話が進んでいきました。8帖の和室も大工さんの腕で、立派な床の間や仏間を再現して頂け良かったです。義母や息子・娘・私の部屋も快適になり収納も充実しました。広さはあったのですが食後寛ぐのは4.5帖の北側の和室だったのが今は広いリビングに皆集まっています。

米谷久美子
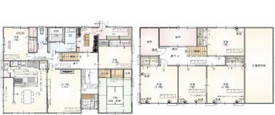
1階の大きな間仕切り移動がポイントで、元の和室2間続きと広縁をLDKにして浴室・洗面を広くとり、ウォークインクローゼットを新設した。勝手口から通じる部分に外で使う用具等を収納できるように物入を作り大容量のクローゼットのある奥様の寝室も新たに作った。真壁の和風建築だったので床天井も解体し、壁も大壁に作り替えた。玄関とホールは既存格天井の趣を残し左官や床材・玄関収納・間接照明で和の雰囲気を残した。2階は和室を洋室に変え内装建具も一新させ各個室を充実させた。
1階の大きな間仕切り移動がポイントで、元の和室2間続きと広縁をLDKにして浴室・洗面を広くとり、ウォークインクローゼットを新設した。勝手口から通じる部分に外で使う用具等を収納できるように物入を作り大容量のクローゼットのある奥様の寝室も新たに作った。真壁の和風建築だったので床天井も解体し、壁も大壁に作り替えた。玄関とホールは既存格天井の趣を残し左官や床材・玄関収納・間接照明で和の雰囲気を残した。2階は和室を洋室に変え内装建具も一新させ各個室を充実させた。
押入れだけある和室だった。

押入れと旧キッチン側に拡張して床の間・違い棚と仏間を新設。
押入れだけある和室だった。

押入れと旧キッチン側に拡張して床の間・違い棚と仏間を新設。

押入れと旧キッチン側に拡張して床の間・違い棚と仏間を新設。
LDKが一番快適な場所にでき、各人の部屋が充実し、水回りが機能的で美しくなってとても快適です。1階のウォークインクローゼットや勝手口から入る外部専用の物入等も便利です。

2間続きの本格的和室と広縁を家族の集う広いLDKにして食事を作る・食べる・TVを見る・寛ぐ・洗濯物を干す ワンちゃんと遊ぶ・お客様を招く等家族みんなで最高の場所を最幸に使って頂けるようにしました。仏間や床の間・違い棚といった本格的な設えは8帖の和室に新設して風情を残しました。





